EasyManua.ls Logo

Fetco CBS-2152XTS - CBS-2152-2 XTS Twin 2 Gal Electrical Configurations; Regional Electrical Configuration Variations

Fetco CBS-2152XTS
36 pages
Print Icon
To Next Page IconTo Next Page
To Next Page IconTo Next Page
To Previous Page IconTo Previous Page
To Previous Page IconTo Previous Page
Loading...
20
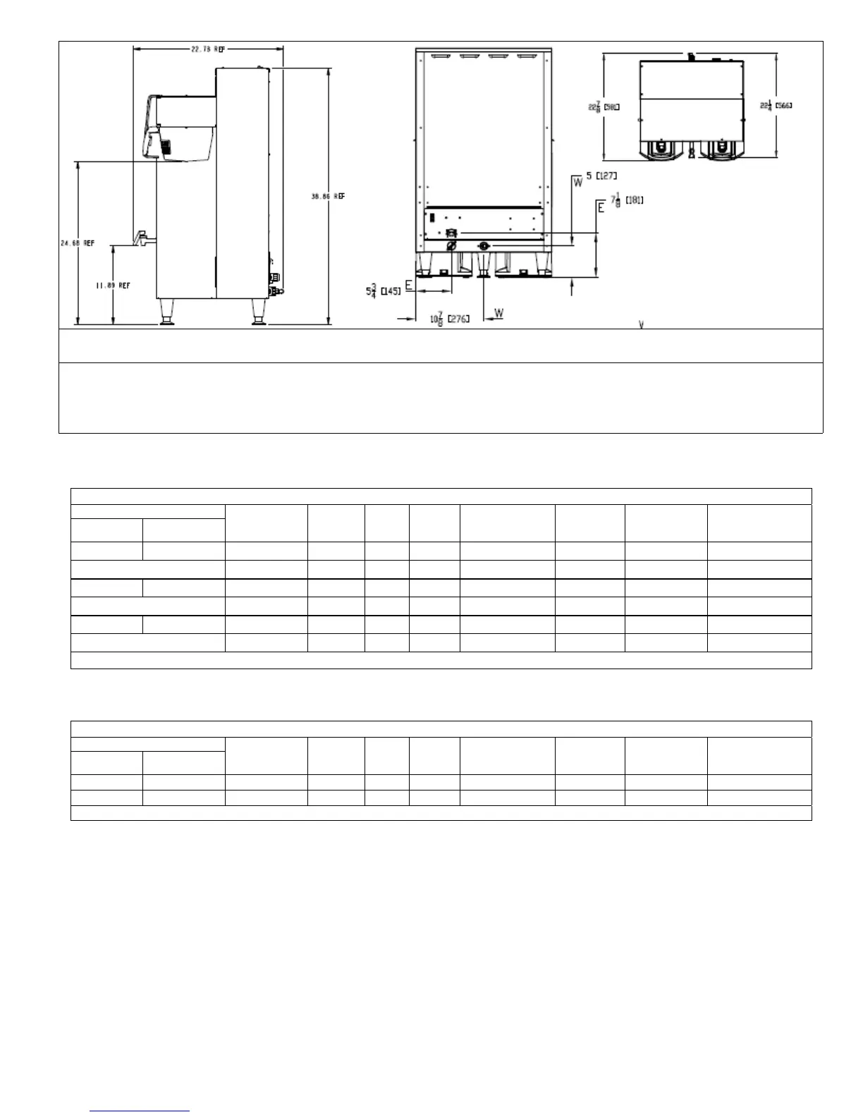
Rough-in CBS-2152-2 gallon XTS —Dual station version
NOTICE: This model uses 2 gallon dispensers
CBS-2150XTS Utility Requirements
Water Requirements: Inlet Water Temperature: Cold supply
20-75 psig (138-517kPa) 1½gpm/(5.7lpm)
Coffee Filter Size:ÆCBS-2150XTS: 15” X 5 ½ ”
Water inlet fitting is a 3/8 inch male flare. Electrical: See electrical configuration chart.
CBS_2152-2 XTS—Twin 2 gallon version Electrical Configurations
USA and Canada CBS_2152-2XTS—Twin 2 gallon version Electrical Configurations
Configuration Codes
Plastic
Brewbasket
Stainless Steel
Brewbasket
Heater
Configuration
Voltage Phase Wires
Electrical
Connection
KW
Maximum
Amp Draw
Brew-Volume/Hour
(1½ gallon per batch)
E215351 E215351M 2 X 3.0 kW 208-240 1 2+G Hardwired 4.6-6.1 22.4-25.8 15.3 gal/58 liters
Selectable—sold as 1 phase 3 X 3.0 kW 208-240 3 3+G Hardwired 6.9-9.1 19.5-22.5 22.5 gal/85 liters
E215352 E215352M 2 X 5.0 kW 208-240 1 2+G Hardwired 7.6-10.1 36.9-42.5 25.3 gal/97 liters
Selectable—sold as1 phase 3 X 5.0 kW 208-240 3 3+G Hardwired 11.4-15.1 32.0-36.9 38.3 gal/145 liters
E215353 E215233M 2 X 4.0 kW 208-240 1 2+G Hardwired 6.1 - 8.1 29.3 - 33.8 19.8 gal/75 liters
Selectable—sold as1 phase 3 X 4.0 kW 208-240 3 3+G Hardwired 9.1-12.1 25.8 - 28.9 29.5 gal/112liters
Has UL & cUL and NSF-4 certification. Not certified CE
CE EXPORT CBS_2152-2XTS—Twin 2 gallon version Electrical Configurations
Configuration Codes
Plastic
Brewbasket
Stainless Steel
Brewbasket
Heater
Configuration
Voltage Phase Wires
Electrical
Connection
KW
Maximum
Amp Draw
Brew-Volume/Hour
(1½ gallon per batch)
(CE) E215361 (CE) E215361M
3 X 3.0 kW 230/400 3 3L,N,PE Hardwired 8.6 12.4 22.5 gal/85 liters
(CE) E215362 (CE) E215362M
3 X 5.0 kW 230/400 3 3L,N,PE Hardwired 14.1 20.4 38.3 gal/145 liters
Has CE and NSF-4 certification. Internal EMI filter. Not cUL and UL listed

Related product manuals