EasyManua.ls Logo

FHP GO072 - Maintenance; Wiring Diagrams

FHP GO072
20 pages
Print Icon
To Next Page IconTo Next Page
To Next Page IconTo Next Page
To Previous Page IconTo Previous Page
To Previous Page IconTo Previous Page
Loading...
GO SERIES
11
MAINTENANCE:
1. Filter changes or cleanings are required at regular
intervals. The time period between filter changes will
depend upon type of environment the equipment is
used in. In a single family home, that is not under
construction, changing or cleaning the filter every 60
days is sufficient. In other applications such as
motels, where daily vacuuming produces a large
amount of lint, filter changes may be need to be as
frequent as biweekly.
WARNING: Equipment should never be used during
construction due to likelihood of wall board dust
accumulation in the air coil of the equipment which
permanently affects the performance and may shorten
the life of the equipment.
2. A bi-yearly “checkup” is recommended by a licensed
refrigeration mechanic. Recording the performance
measurements of volts, amps, and water temperature
differences (both heating and cooling) is
recommended. This data should be compared to the
information on the unit’s data plate and the data
taken at the original startup of the equipment.
3. Lubrication of the blower motor is not required,
however may be performed on some motors to
extend motor life. Use SAE-20 non-detergent electric
motor oil.
4. The condensate drain should be checked biannually
by cleaning and flushing to insure proper drainage.
5. Periodic lockouts almost always are caused by air or
water flow problems. The lockout (shutdown) of the
unit is a normal protective measure in the design of
the equipment. If continual lockouts occur call a
mechanic immediately and have them check for:
water flow problems, water temperature problems,
air flow problems or air temperature problems. Use of
the pressure and temperature charts for the unit may
be required to properly determine the cause.
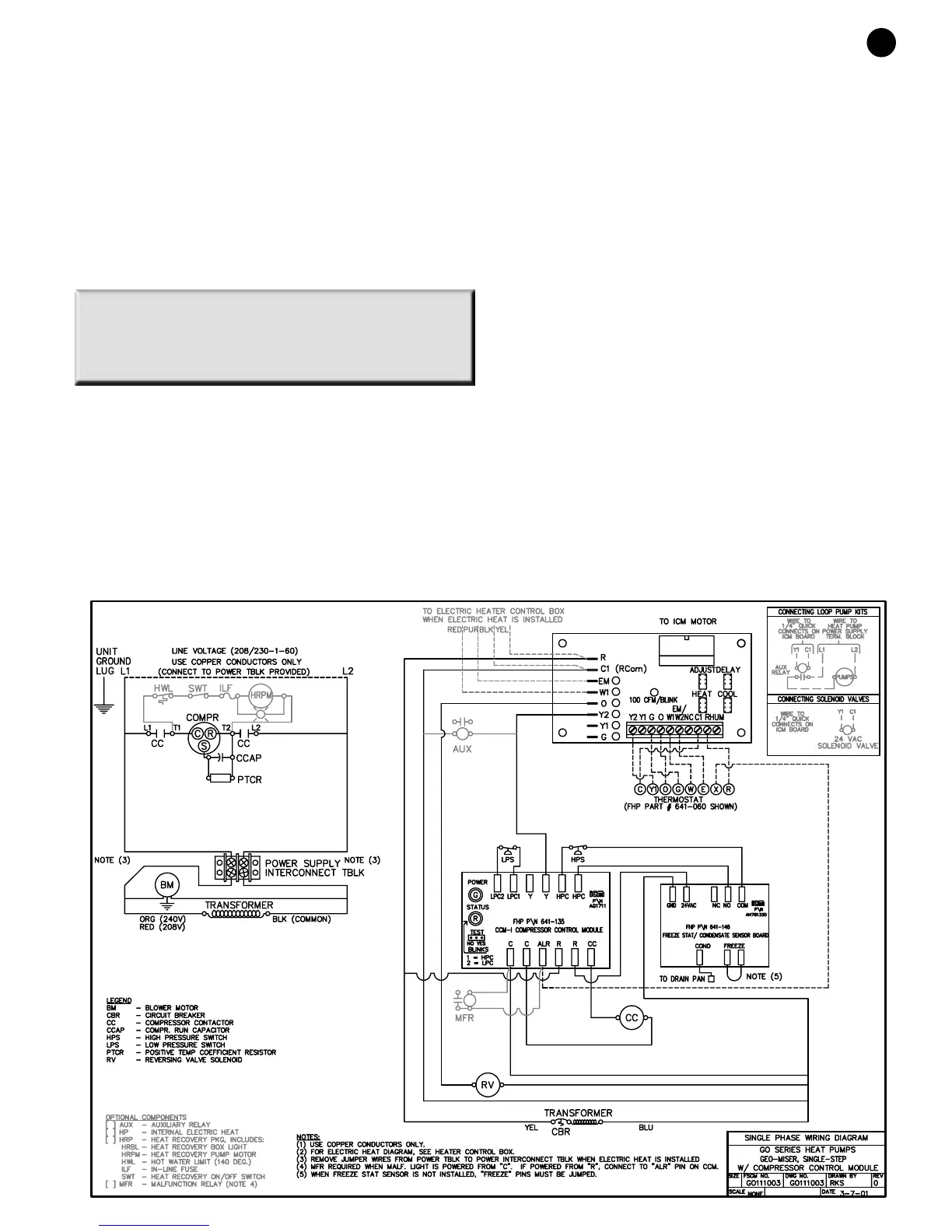
(Figure #14)

Related product manuals