EasyManua.ls Logo

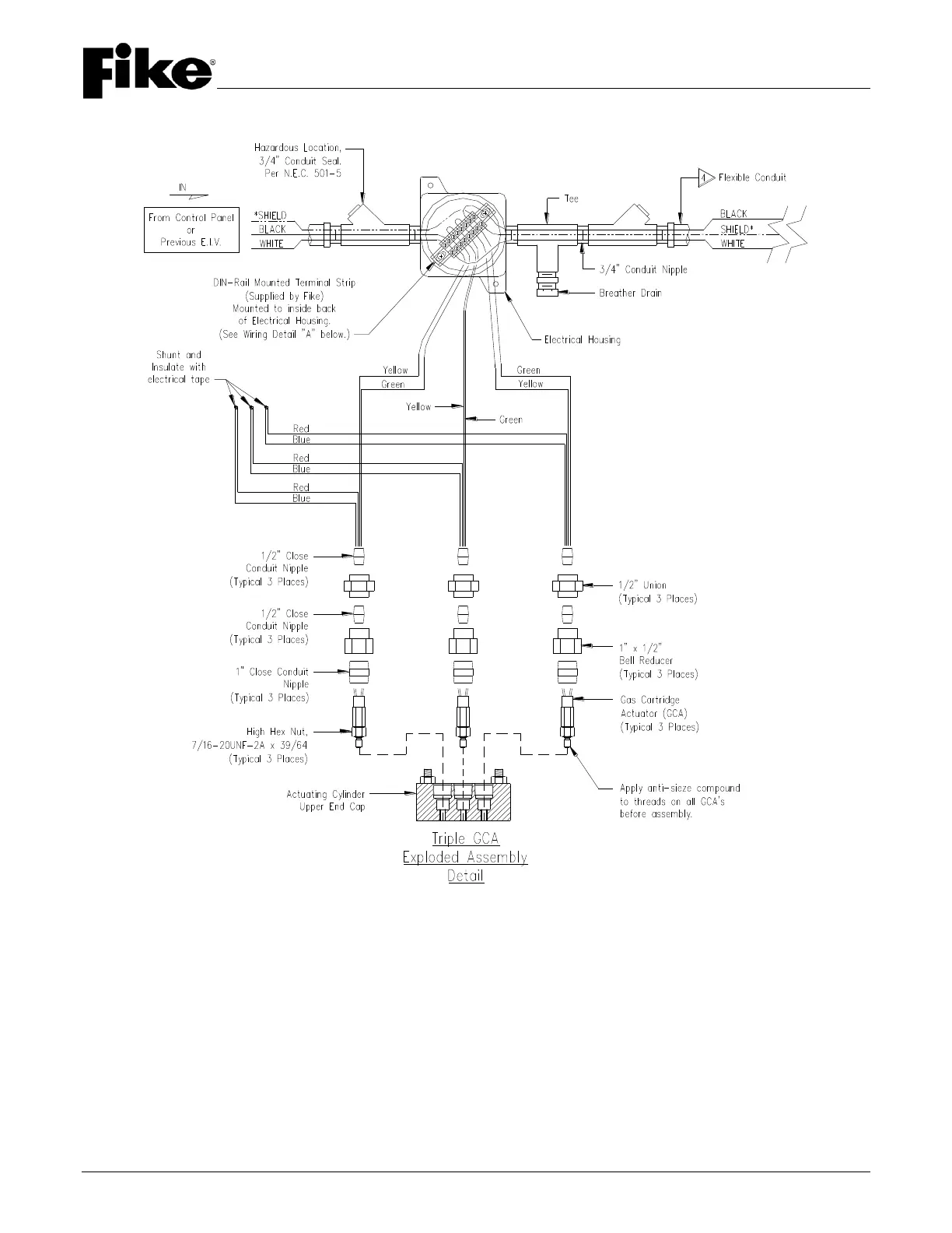
Fike EIV - Figure 12 - Gca; Series Wiring (20 - 24 Eiv)

Fike EIV
22 pages
Print Icon
To Next Page IconTo Next Page
To Next Page IconTo Next Page
To Previous Page IconTo Previous Page
To Previous Page IconTo Previous Page
Loading...
EXPLOSION ISOLATION VALVE
INSTALLATION & OPERATION MANUAL
January, 2015 Document P/N: E06-017-1 (Rev 2) Page: 15
FIGURE 12 GCA / SERIES WIRING (20" and 24" EIV)