EasyManua.ls Logo

FISCHER [CF] EASY - Kühlstellenregler; Fühler Umgebungstemperatur; Weitere Ausgänge am Anlagen-Regler XCM25 D; Alarm Ausgang (DO5)

FISCHER [CF] EASY
Print Icon
To Next Page IconTo Next Page
To Next Page IconTo Next Page
To Previous Page IconTo Previous Page
To Previous Page IconTo Previous Page
Loading...
C6.1.6/0513-0515/G 21
2.17.2 Kühlstellenregler
Alternative Methoden zur Regelung der Temperaturen an den Kühlstellen können eingesetzt
werden. Der XCM25D akzeptiert Eingangssignale von gängigen herkömmlichen Thermostaten
über den Kontakt DI3.
2.17.3 Fühler Umgebungstemperatur
Ein Fühler zur Erfassung der Umgebungstemperatur ist von Emerson Climate Technologies
vorinstalliert und mit dem XCM25D-Regler verbunden. Dieser Temperatur-Fühler wird für
verschiedene Funktionen verwendet, wie z.B. Notbetrieb, untere Beschränkung der Lüfter-
Drehzahlregelung und Regelung der Kurbelwannenheizung. Der Fühler ist an der Außenseite
des Gehäuses auf der Rückseite der elektronischen Bauteile befestigt.
2.18 Weitere Ausgänge am Anlagen-Regler XCM25D
2.18.1 Alarm Ausgang (DO5)
Der digitale Ausgang “DO5” ist vorkonfiguriert als Alarm-Ausgang. Er wird bei Alarm oder
Verriegelung aktiviert.
In Werkseinstellung werden Warnungen nicht über “DO5” gemeldet. Diese erscheinen lediglich
auf der Anzeige des Reglers..
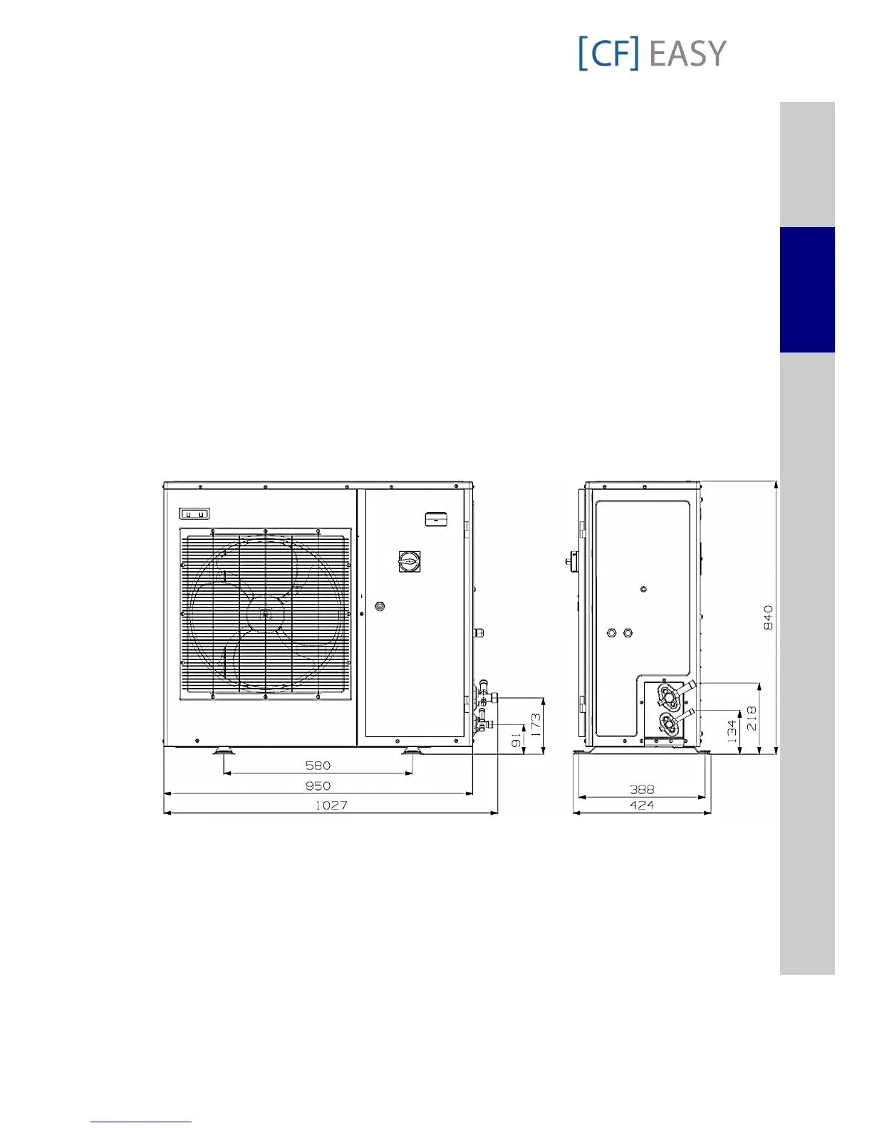
2.19 Abmessungen in mm
Den folgenden Darstellungen zeigen die äußeren Abmessungen der beiden Gehäusevarianten:
Abbildung 12: Abmessungen für Normalkühl-Modelle CFME020E, CFME025E, CFME030E & CFME040E und
Tiefkühl-Modelle CFLE020E, CFLE030E & CFLE040E (Einzel-Lüfter)
Sicherheits-
hinweise
Produkt-
Beschreibung
Installation
Start &
Betrieb
Wartung &
Reparatur
Zertifizierung &
Freigabe
Demontage &
Entsorgung

Table of Contents