EasyManua.ls Logo

Flotec FP0F360AC - Page 20

Flotec FP0F360AC
36 pages
Print Icon
To Next Page IconTo Next Page
To Next Page IconTo Next Page
To Previous Page IconTo Previous Page
To Previous Page IconTo Previous Page
Loading...
20
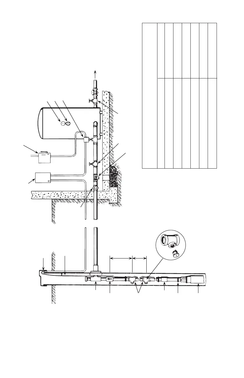
PITLESS
ADAPTOR
CHECK VALVE
BLEEDER
ORIFICE
& TEE
PIPE
COUPLING
TAPE CABLE
TO PIPE
PUMP
VENTILATED
WELL CAP
SUBMERSIBLE
CABLE
UNION
CONTROL BOX
(3 WIRE MODELS)
ELECTRICAL DISCONNECT
PRESSURE GAUGE
AIR VOLUME CONTROL
PRESSURE SWITCH
TO HOUSE SERVICE
GATE VALVE
RELIEF VALVE
2 ft.
(.6m)
SEE TABLE
FIGURE 13 – Installation d’un réservoir sous pression standard
DISTANCE ENTRE LE CLAPET DE NON RETOUR ET
L’ORIFICE DE PURGE SUPÉRIEUR
CONTENANCE DES RÉSERVOIRS DISTANCE
42 gallons (159 L) 2 pi (0,6 m)
82 gallons (310 L) 3 pi (0,9 m)
120 gallons (454 L) 5 pi (1,4 m)
220 gallons (833 L) 5 pi (1,4 m)
315 gallons (1 192 L) 10 pi (3,0 m)
525 gallons (1 987 L) 15 pi (4,6 m)
BOÎTE DE COMMANDE
(MODÈLES À 3 FILS)
SÉLECTIONNEUR ÉLECTRIQUE
MANOMÈTRE
RÉGULATEUR DE VOLUME D’AIR
PRESSOSTAT
VERS LA MAISON
ROBINET-VANNE
SOUPAPE DE SÛRETÉ
VOIR LE TABLEAU
POMPE
CÂBLE ATTACHÉ SUR LE
TUYAU AVEC DU RUBAN
RACCORD DE
TUYAUTERIE
ORIFICES DE
PURGE ET TÉS
CLAPET DE NON RETOUR
COULISSEAU DE
RACCORDEMENT
RACCORDS
CÂBLE
SUBMERSIBLE
COUVERCLE
DE PUITS MIS
À L’AIR LIBRE
2 pi
(0,6 m)

Related product manuals