EasyManua.ls Logo

Fluke 7-300 - Page 48

Fluke 7-300
53 pages
Print Icon
To Next Page IconTo Next Page
To Next Page IconTo Next Page
To Previous Page IconTo Previous Page
To Previous Page IconTo Previous Page
Loading...
Parts and Schematics
Parts Lists, Drawings, and Schematics
4
4-15
TP2 TP1
TP3 2. 1MHZ
Y1
U2
P70
P63
P62
P61
P60
X2
X1
VPP
XT2
XT1
VDD
P33
P32
P31
P30
P23
P22
P21
P20
P13
P12
P11
P10
P03
SO
SCK
P00
P53
P52
P51
P50
VSS
P43
P42
P41
P40
VLC2
VLC1
VLC0
BI AS
S12
S13
S14
S15
S16
S17
S18
S19
S20
S21
S22
S23
S24
S25
S26
S27
S28
S29
S30
S31
COM0
COM1
COM2
COM3
P71
P72
P73
RESET*
S0
S1
S2
S3
S4
S5
S6
S7
S8
S9
S10
S11
1234567891011121314151617 1819202122232425262728
U3
CR3
BAV99
R23
1. 0M
2. 2M
R25
C13
0. 1
0. 1
C12
22
C10
C4
0. 1
S2
S2
S2
SELECT
AZEND
SCLK SOUT
CAPACI TANCE
RANGE
DGND
ADR0
ADR1
ADR2
ADR3
ADR4
ADR5
READ*
WRI TE*
VSS1
BCLK
CLK
DATA3
DATA2
DATA1
DATA0
VDD
VSS2
25V
10%
25V
10%
.5%
67
68
25
38
29
30
31
32
34
35
36
37
65
66
69
70
79
80
71
72
73
74
75
76
77
78
39
40
26
27
28
33
47
41
43
2
56
55
59
58
57
54
20
19
18
17
16
15
14
13
12
11
10
9
8
7
6
5
4
3
1
64
63
62
61
60
53
52
51
50
49
48
46
45
44
42
24
23
22
21
1 272 2834567891011121314151617 181920212223242526
AL
10V
20%
51
25V
10%
1%
53
52
FLUKE 7-300-1201
(2 of 2)
ALUMI NUMAL
CARBON FI L MCF
CARBON COMPCC
COMPONENT TYPE ABBREVI ATI ON CODES
SYM CAPACI TOR SYM RESI STOR
POLYPROPYLENE FI LM
M
C
T
PC
PP
MYLAR/ POLYESTER
CERAMI C
TANTALUM
POL Y CARBONATE
MG
WW
MF
MET A L GL AZ E
WI RE WOUND
MET A L F I L M
J
CR
E
LS
C
REFERENCE DESIGNATION
LAST USED NOT USED
Q
C
R
U
BT
S
TP
Y
Z
VR
RT
SELECT
PI N ASSIGNMENTS
MEMBRANE TAI L
S2
CLOSED
OPEN
OPEN
CLOSED
OPEN
OPEN
CLOSED
CLOSED
OPEN
LOW Z
HI GH Z
OFF
4- 52- 31- 2
CONTACTS
POSI TI ON
S1 CONNECTIVITY TABLE
5
20
11
1
1
1
1
3
2
2
2
3
1
1
16
1
NOTES: UNLESS OTHERWI SE SPECI FI ED:
1.
2. ALL CAPACI TANCE VALUES ARE I N MI CROFARADS,
+/ - 1 0%, CERAMI C.
3. ALL RESI STANCE VALUES ARE I N OHMS, 1/ 8 WATT,
+/ - 5%, CERMET. +/ - 1% RESI STORS ARE 1/ 8 WATT,
CERMET.
4.
R19 I S A FUSI BLE RESI STOR. EXACT
REPLACEMENT ONLY.
6. R11 AND R12 MAY HAVE +/ - 0. 25% TOLERANCE.
7. R23 MAY HAVE +/ - 5% TOLERANCE.
8.
30
8
1
2
6
5
4
3
VSS
VSS
CAPACI TANCE
RANGE
C4, 9, 12 & 13 MAY HAVE +/ - 20% TOLERANCE.
as13f.eps
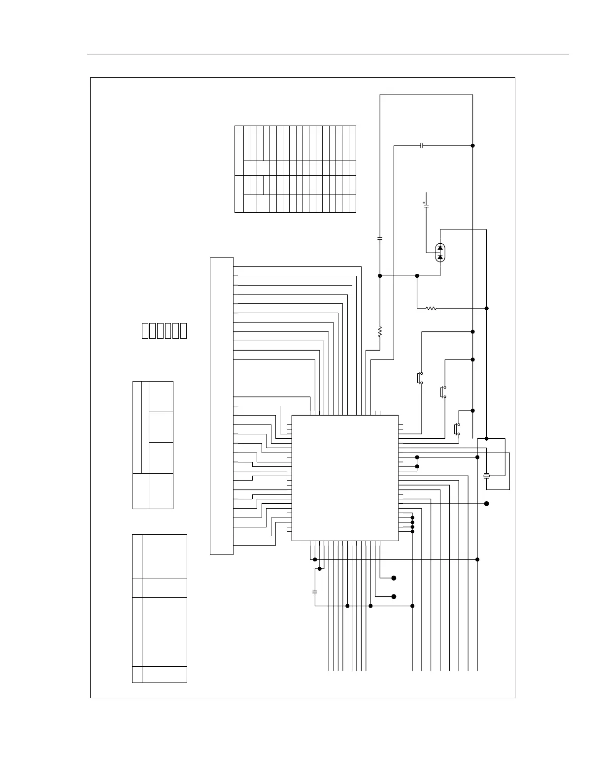
Figure 4-6. Model 7-300 Schematic (cont)
StockCheck.com

Related product manuals