EasyManua.ls Logo

Follett HCD - Refrigeration System Schematics; System Diagrams

Follett HCD
40 pages
Print Icon
To Next Page IconTo Next Page
To Next Page IconTo Next Page
To Previous Page IconTo Previous Page
To Previous Page IconTo Previous Page
Loading...
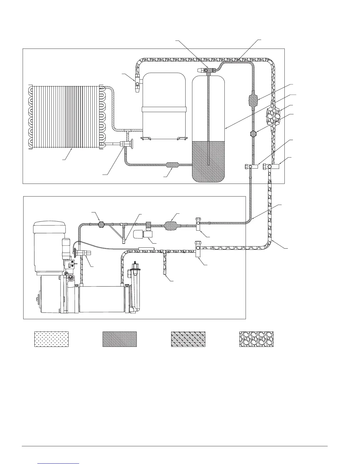
24 Horizon 1650R/N Ice Machines
filter-drier
EVAPORATOR UNIT
sight glass
solenoid valve
TYPICAL
CONDENSING UNIT
head control valve, 180 PSI
check valve
compressor
High pressure vapor
receiver
14 pounds
high side
service port
filter-drier
sight glass
heat exchanger
low side service valve
with service port
condenser
high side service valve
with service port
filter-drier
high side
service valve
with service port
low side
service valve
with service port
high side
service valve
with service port
low side
service valve
with service port
low side
service port
thermostatic
expansion
valve
high side
refrigeration
line run
low side
refrigeration
line run
High pressure liquid
Low pressure liquid
Low pressure vapor
Refrigeration system diagram

Related product manuals