EasyManua.ls Logo

Follett REF5-BB - Refrigeration System Analysis; Refrigeration System Overview; Checking Refrigeration Pressures

Follett REF5-BB
16 pages
Print Icon
To Next Page IconTo Next Page
To Next Page IconTo Next Page
To Previous Page IconTo Previous Page
To Previous Page IconTo Previous Page
Loading...
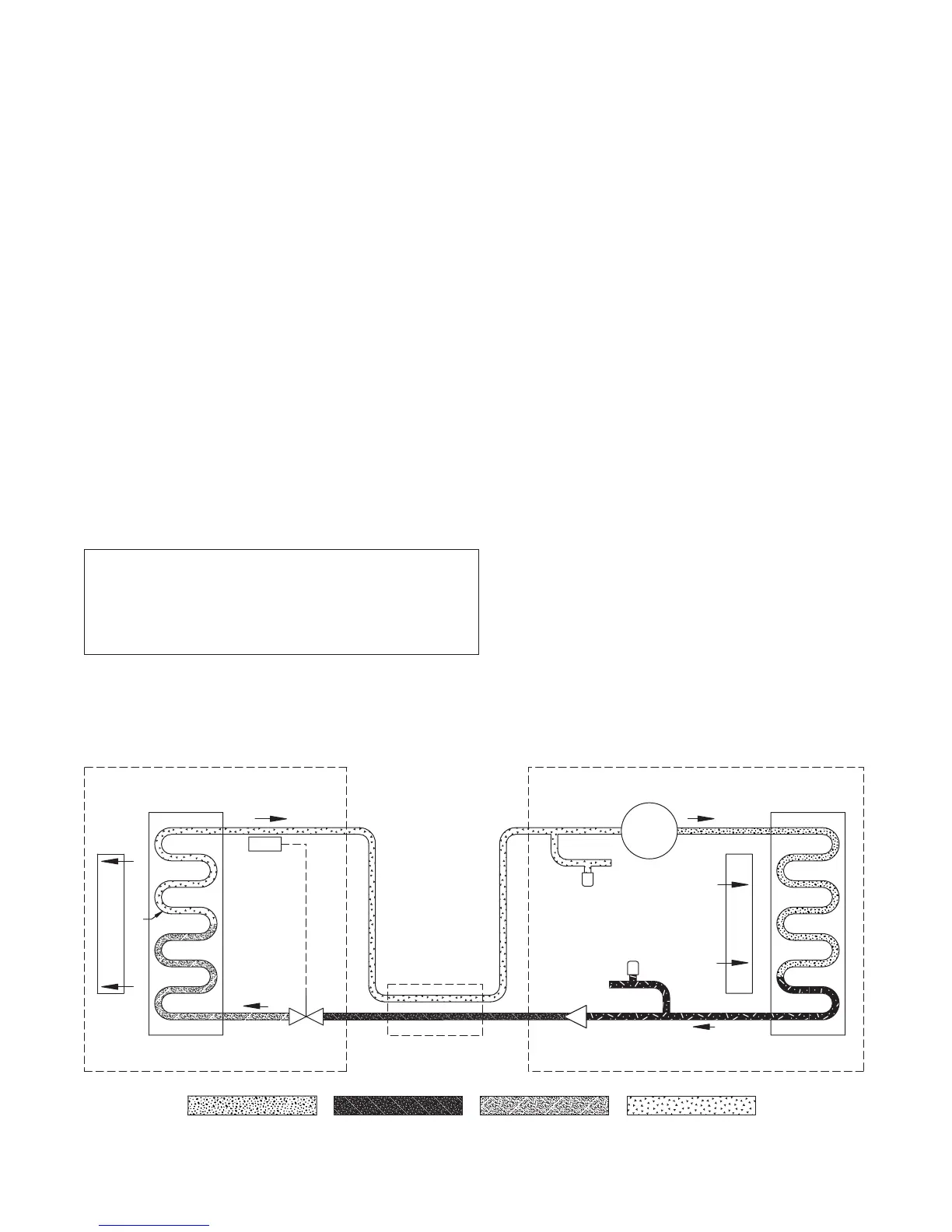
Refrigeration system
The REF5-BB series refrigeration system is designed to give many years of trouble-free service. Except for
routine cleaning of the air-cooled condenser and related parts, the refrigeration system requires no service or
maintenance. The system uses a thermostatic expansion valve and is critically charged. Access fittings are
provided for ease of service. However, the connection of refrigeration service hoses to the fittings will almost
invariably result in a significant change in the system charge. This change can adversely affect the performance
of your refrigerator. Therefore, Follett recommends that if hoses are ever connected to the refrigeration system
for service, the refrigerant should be recovered, the system evacuated, and recharged by weighing in the correct
refrigerant charge.
Note: Do not charge the system by pressures.
Checking refrigeration system pressures
1. Remove the rear access panel (Fig. 10).
2. Turn the power switch to the on position.
3. Following the instructions on page 5 verify that the temperature controller is set to the original factory set
point (cut-out) setting of +3.5°C (+38°F).
4. Allow the freezer to operate and stabilize at least 30 minutes, verifying the cut-out temperature is
being reached.
5. Connect refrigerant hoses to access fittings and measure air temperature at condenser intake grille.
6. Verify correct pressures with the temperature chart below.
7. Troubleshoot refrigeration system as needed.
Note: Do not attempt to obtain correct refrigeration pressures by adjusting the system charge.
10
Condenser inlet air temperature 70° – 100°F
Discharge pressure (psi) 190 – 210
Suction pressure (psi) 40 – 50
DRYER
HIGH PRESSURE VAPOR LOW PRESSURE VAPORHIGH PRESSURE LIQUID LOW PRESSURE LIQUID
COMPRESSOR
FAN
10oz. Charge
High Psi
Liquid
Low Psi
Liquid
High Psi
Vapor
Low Psi
Vapor
HEAT EXCHANGE
EVAPORATOR FAN
EVAPORATOR/DEFROST UNIT
CONDENSING UNIT
EVAPORATOR
TXV
LOW SIDE
SERVICE PORT
HIGH SIDE
SERVICE PORT
Refrigeration system diagram

Other manuals for Follett REF5-BB

Related product manuals