EasyManua.ls Logo

FPI P36D-NG - Venting - Dura-Vent Vertical Termination

FPI P36D-NG
72 pages
Print Icon
To Next Page IconTo Next Page
To Next Page IconTo Next Page
To Previous Page IconTo Previous Page
To Previous Page IconTo Previous Page
Loading...
FPI P36D Zero Clearance Direct Vent Gas Fireplace
32
INSTALLATION
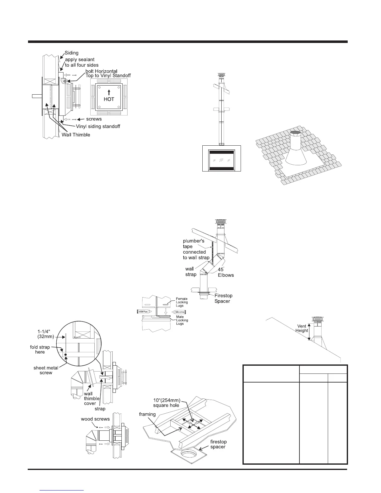
Diagram 3
Diagram 5
Diagram 1
Diagram 2
Note: Apply sealant "Mill-Pac" to inner
pipe and high temperature sili-
cone sealant to outer pipe on eve-
ry twist-lock joint.
Diagram 5
Diagram 6
VERTICAL
TERMINATION
1) Maintain the 1-1/4" clearances
(air spaces) to combustibles
when passing through ceilings,
walls, roofs, enclosures, attic
rafter, or other nearby com-
bustible surfaces. Do not pack
air spaces with insulation.
Check for the maximum vertical
rise of the venting system and
the maximum horizontal
offset limitations.
Diagram 7
The four wood screws provided should be
replaced with appropriate fasteners for
stucco, brick, concrete, or other types of
sidings.
Note: If installing termination on a siding
covered wall, a vinyl siding stand-
off or furring strips must be used
to ensure that the termination is
not recessed into the siding.
7) Before connecting the horizontal run of
vent pipe to the vent termination, slide the
Wall Thimble over the vent pipe.
8) Slide the appliance and vent assembly to-
wards the wall carefully inserting the vent
pipe into the vent cap assembly. It is impor-
tant that the vent pipe extends into the vent
cap sufficient distance so as to result in a
minimum pipe overlap of 1-1/4 inches. Se-
cure the connection between the vent pipe
and the vent cap by attaching the two sheet
metal strips extending from the vent cap
assembly into the outer wall of the vent
pipe. Use the two sheet metal screws
provided to connect the strips to the pipe
section. See Diagram 6.
9) Install wall thimble
in the center of the
10" square and
attach with wood
screws (Diagram
7).
2) Set the gas appliance in
its desired location. Drop
a plumb bob down from
the ceiling to the position
of the appliance flue exit,
and mark the location where the vent will
penetrate the ceiling. Drill a small hole at his
point. Next, drop a plumb bob from the roof
to the hole previously drilled in the ceiling,
and mark the spot where the vent will
penetrate the roof. Determine if ceiling joists,
roof rafters or other framing
will obstruct the venting sys-
tem. You may
wish to relocate
the appliance or
to offset, as
shown in Dia-
gram 2 to avoid
cutting load
bearing mem-
bers.
3) A Firestop spacer must be installed in the
floor or ceiling of every level. To install the
Firestop spacer in a flat ceiling or wall, cut
a 10 inch square hole. Frame the hole as
shown in Diagram 3 and install the firestop.
4) Assemble the desired lengths of pipe and
elbows. Ensure that all pipes and elbow
connections are in the fully twist-locked
position and sealed.
5) Cut a hole in the roof centered on the small
drilled hole placed in the roof in Step 2. The
hole should be of sufficient size to meet the
minimum requirements for clearance to com-
bustibles of 1-1/2". Slip the flashing under
the shingles (shingles should overlap half
the flashing) as per Diagram 4.
Roof Pitch Minimum Vent Height
Feet Meters
flat to 7/12 2 0.61
over 7/12 to 8/12 2 0.61
over 8/12 to 9/12 2 0.61
over 9/12 to 10/12 2.5 0.76
over 10/12 to 11/12 3.25 0.99
over 11/12 to 12/12 4 1.22
over 12/12 to 14/12 5 1.52
over 14/12 to 16/12 6 1.83
over 16/12 to 18/12 7 2.13
over 18/12 to 20/12 7.5 2.29
over 20/12 to 21/12 8 2.44
Diagram 4: The upper half of the flashing is
installed under the roofing material and not
nailed down until the chimney is installed.
This allows for small adjustments.
6) Continue to assemble pipe lengths.
Note: If an offset is necessary in the attic
to avoid obstructions, it is impor-
tant to support the vent pipe every
3 feet, to avoid excessive stress
on the elbows, and possible sep-
aration. Wall straps are available
for this purpose (Diagram 2).
Galvanized pipe is desirable above the roof-
line due to its higher corrosion resistance.
Continue to add pipe sections through the
flashing until the height of the vent cap meets
the minimum height requirements specified in
Diagram 5 or local codes. Note that for steep

Table of Contents

Related product manuals