EasyManua.ls Logo

Franklin Electric Inline400 - Page 38

Franklin Electric Inline400
72 pages
Print Icon
To Next Page IconTo Next Page
To Next Page IconTo Next Page
To Previous Page IconTo Previous Page
To Previous Page IconTo Previous Page
Loading...
14
Re-calibración de la cabeza de control
Hay veces, especialmente después del servicio, que el Inline 400 necesita recalibrarse. Esto es necesario para poder restablecer un punto de referencia
para la indicación de flujo. Siga estos procedimientos para la calibración de flujo en el campo:
1. Antes de pasar la alimentación eléctrica a la unidad, verifique que no haya flujo de agua en el sistema. Esto asegurará que
el pistón de flujo esté en en la posición completamente asentado (cero flujo).
2. Mientras mantiene presionado el botón en la pantalla de estado, conecte el cable de alimentación de la unidad al receptáculo
(o encienda el interruptor si está cableado directo). Continúe presionando al botón cinco segundos hasta que los indicadores
LED verde y rojo parpadeen ambos, indicando que finalizó la calibración. Libere el botón y el indicador LED rojo debe quedar
iluminado fijo, indicando que la calibración fue exitosa.
3. Abra las válvulas/grifos para comenzar el flujo del agua y confirmar que la unidad está funcionando apropiadamente.
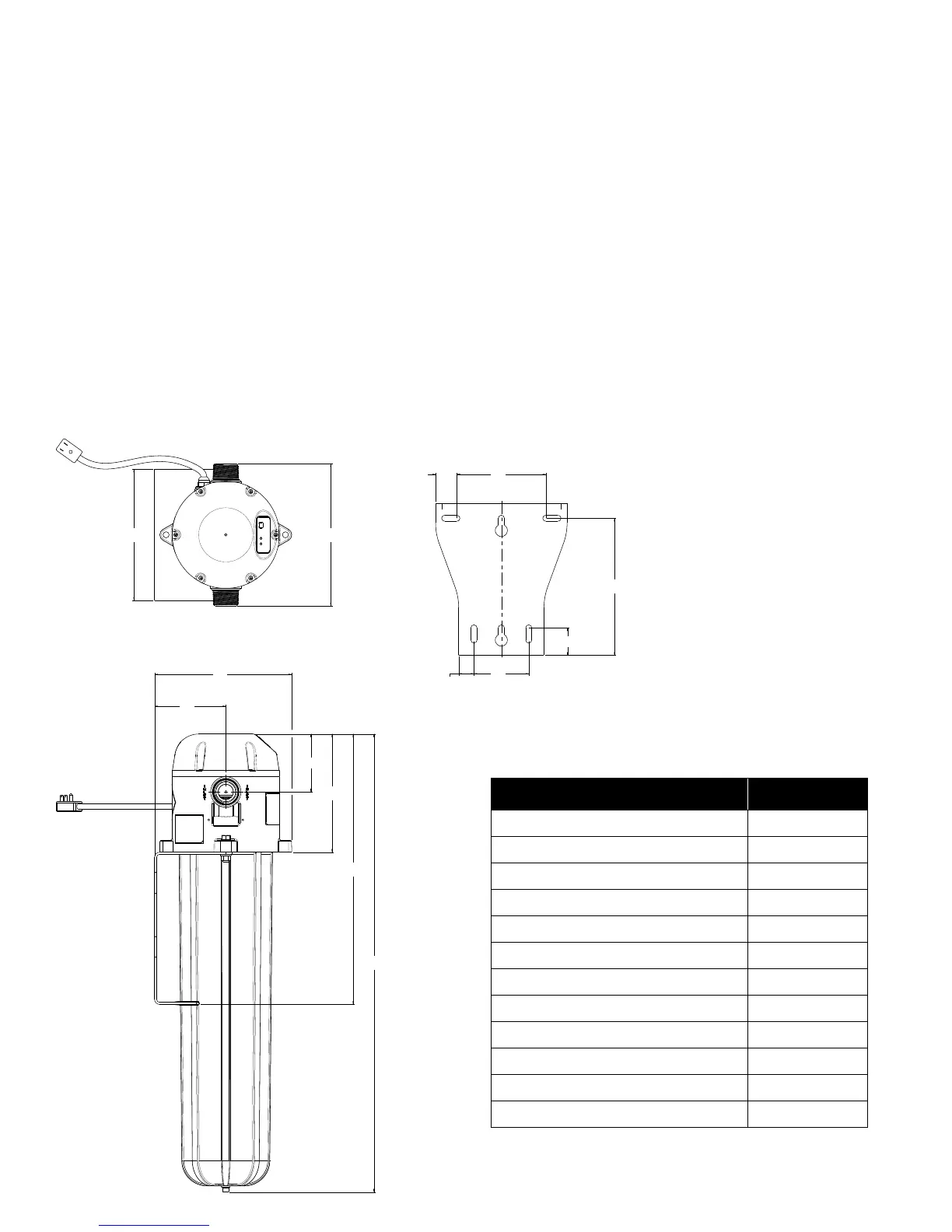
Esquema de dimensiones del Inline 400
Descripción del modelo No. de pedido
Llave para la carcasa de la bomba 305572001
Interruptor de presión (40 psi) de entrada o salida 305572007
Carcasa de de recambio de la bomba 305572009
Tapa de control de recambio con pantalla 305572010
Base de montaje de recambio 305572011
Capacitor del motor - 115 V (con tapa de goma) 305572012
Condensador del motor - 230 V (con tapa de goma) 305572013
Cable de alimentación - 115 V 305572014
Cable de alimentación - 230 V 305572015
Kit del pistón de flujo 305572016
Junta tórica de la carcasa de la bomba 305572017
Kit tapa protectora exterior 305572018
[225]
8.86
[45]
1.77
[35]
1.38
[146]
5.75
[90]
3.54
[25]
0.98
[234]
9.21
[216]
8.50
[117]
4.61
[225]
8.86
[95]
3.74
[194]
7.64
[444]
17.48
[752]
29.61