EasyManua.ls Logo

Franklin Electric Inline400 - Page 62

Franklin Electric Inline400
72 pages
Print Icon
To Next Page IconTo Next Page
To Next Page IconTo Next Page
To Previous Page IconTo Previous Page
To Previous Page IconTo Previous Page
Loading...
14
Recalibration de la tête de contrôle
À certains moments, particulièrement après l’entretien, l’unité Inline400 doit être recalibrée. Cela est nécessaire afin de rétablir un point de référence
pour l’indication du débit. Suivez ces procédures pour la calibration du débit sur le terrain:
1. Avant d’allumer l’unité, assurez-vous qu’il n’y a aucun débit d’eau dans le système. Cela vous assurera que le piston de débit est en position
pleinement au repos (aucun débit).
2. En tenant enfoncé le bouton-poussoir sur l’achage d’état, branchez le cordon d’alimentation de l’unité dans la prise (ou activez le
disjoncteur si l’unité est câblée de manière permanente). Maintenez la pression sur le bouton pendant cinqsecondes, jusqu’à ce que
les voyants à DEL vert et rouge clignotent; cela signifie que la calibration est terminée. Relâchez le bouton et les voyants devraient
s’allumer en continu, indiquant ainsi la réussite de la calibration.
3. Ouvrez les soupapes/robinets pour démarrer le débit et confirmez que l’unité fonctionne correctement.
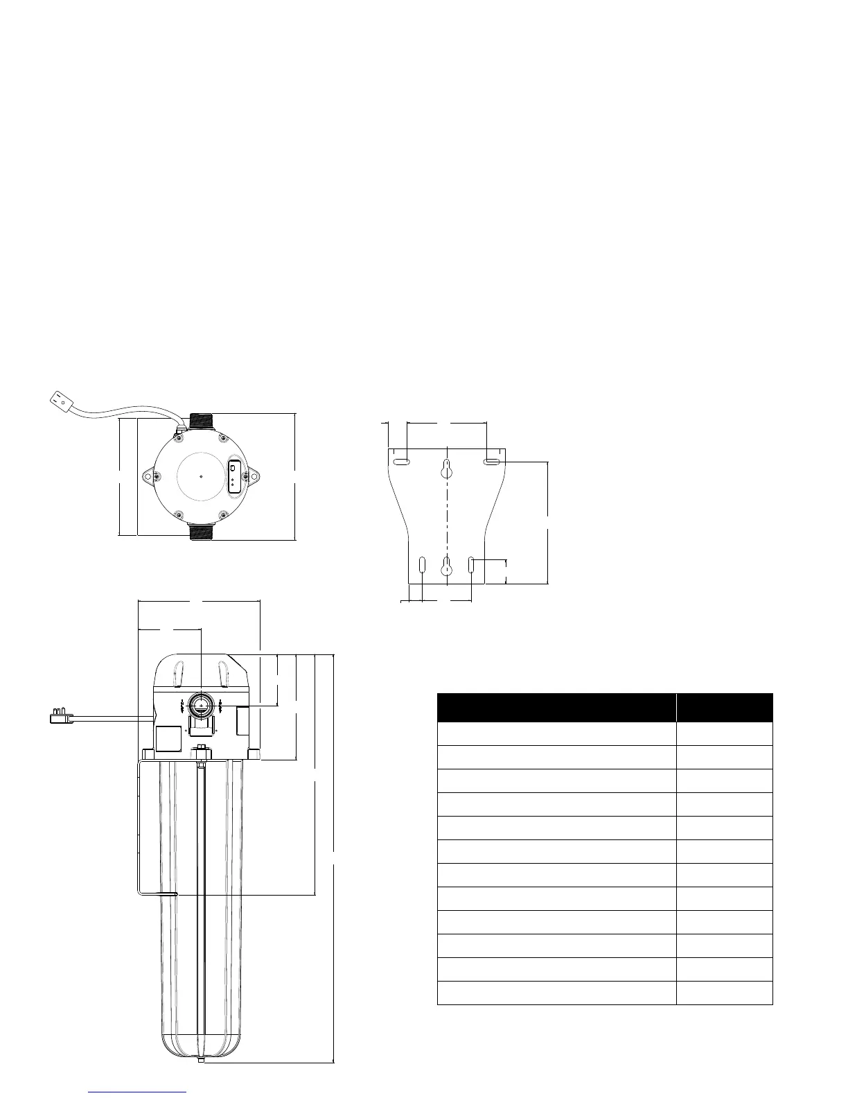
Dimensions hors tout de l’unité Inline400
Description du modèle N
o
de commande
Clé de boîtier de pompe 305572001
Interrupteur de pression d’entrée ou de sortie (40psi) 305572007
Boîtier de pompe de remplacement 305572009
Capuchon de contrôle de remplacement, avec achage 305572010
Base de fixation de remplacement 305572011
Condensateur de moteur, 115V (avec gaine) 305572012
Condensateur de moteur, 230V (avec gaine) 305572013
Cordon d’alimentation, 115V 305572014
Cordon d’alimentation, 230V 305572015
Trousse de piston de débit 305572016
Joint torique de boîtier de pompe 305572017
Kit de protection extérieure capuchon 305572018
[225]
8.86
[45]
1.77
[35]
1.38
[146]
5.75
[90]
3.54
[25]
0.98
[234]
9.21
[216]
8.50
[117]
4.61
[225]
8.86
[95]
3.74
[194]
7.64
[444]
17.48
[752]
29.61