EasyManua.ls Logo

Fronius Primo GEN24 3.6 - Wiring Diagram - Surge Protective Device SPD; Circuit Diagram

Fronius Primo GEN24 3.6
208 pages
To Next Page IconTo Next Page
To Next Page IconTo Next Page
To Previous Page IconTo Previous Page
To Previous Page IconTo Previous Page
Loading...
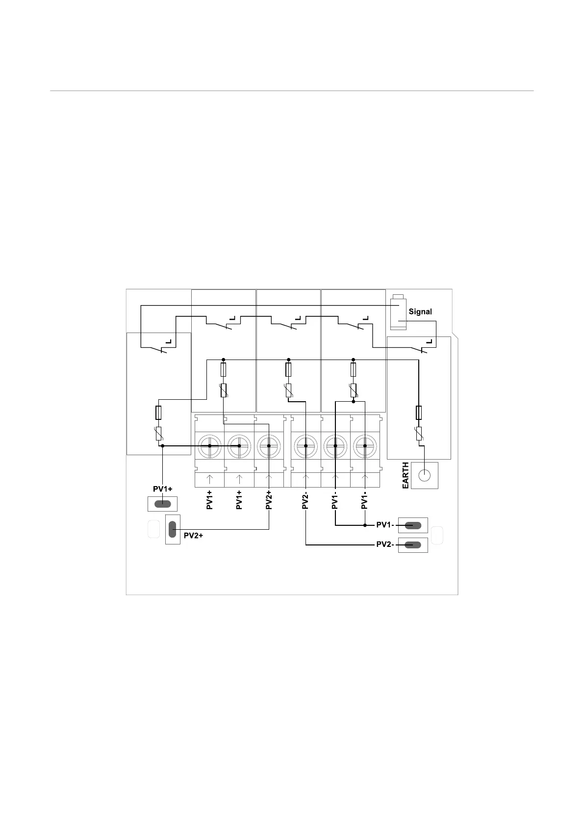
Wiring diagram - surge protective device SPD
Circuit Diagram
204

Table of Contents

Related product manuals