EasyManua.ls Logo

Fronius TransSynergic 4000 - Start-up Safety and Component Information

Fronius TransSynergic 4000
140 pages
To Next Page IconTo Next Page
To Next Page IconTo Next Page
To Previous Page IconTo Previous Page
To Previous Page IconTo Previous Page
Loading...
78
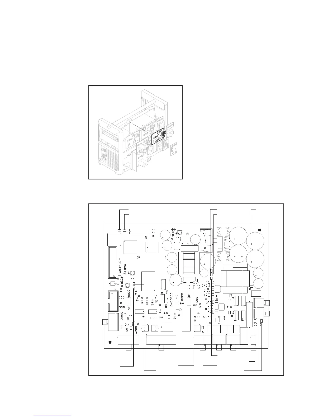
SR 41 - Wire-feed unit regulation unit
General remarks On the TPS 2700 power source, the SR 41 PC board (item number 4,070,677,Z) is the
regulation unit for powering and controlling the wire-feed unit.
Component
position in the
machine
Fig. 53 TPS 2700, position of SR 41 PC board
Fig. 54 SR 41 PC board
Overview
X9
X2
X1
X3
X4
X5
X6 X7
X8
X10
X11
LED BUS OK
LED FLEX OK
LED +15 V
LED +5 V
LED +55 V
LED -24 V
LED µP OK
LED -15 V
LED backwards
LED gas
LED forwards
LED BRT

Table of Contents

Other manuals for Fronius TransSynergic 4000

Related product manuals