EasyManua.ls Logo

Frymaster RE14 - Page 2

Frymaster RE14
2 pages
Print Icon
To Previous Page IconTo Previous Page
To Previous Page IconTo Previous Page
Loading...
Frymaster
®
E
4
Electric Fryers
Model #_______________
CSI Section 11400
8700 Line Avenue
Shreveport, LA 71106-6800
USA
Tel: 318-865-1711
Tel: 1-800-221-4583
Fax: 318-868-5987
E-mail: info@frymaster.com
www.frymaster.com
Bulletin No. 818-0468 11/07
Litho in U.S.A. ©Frymaster, LLC
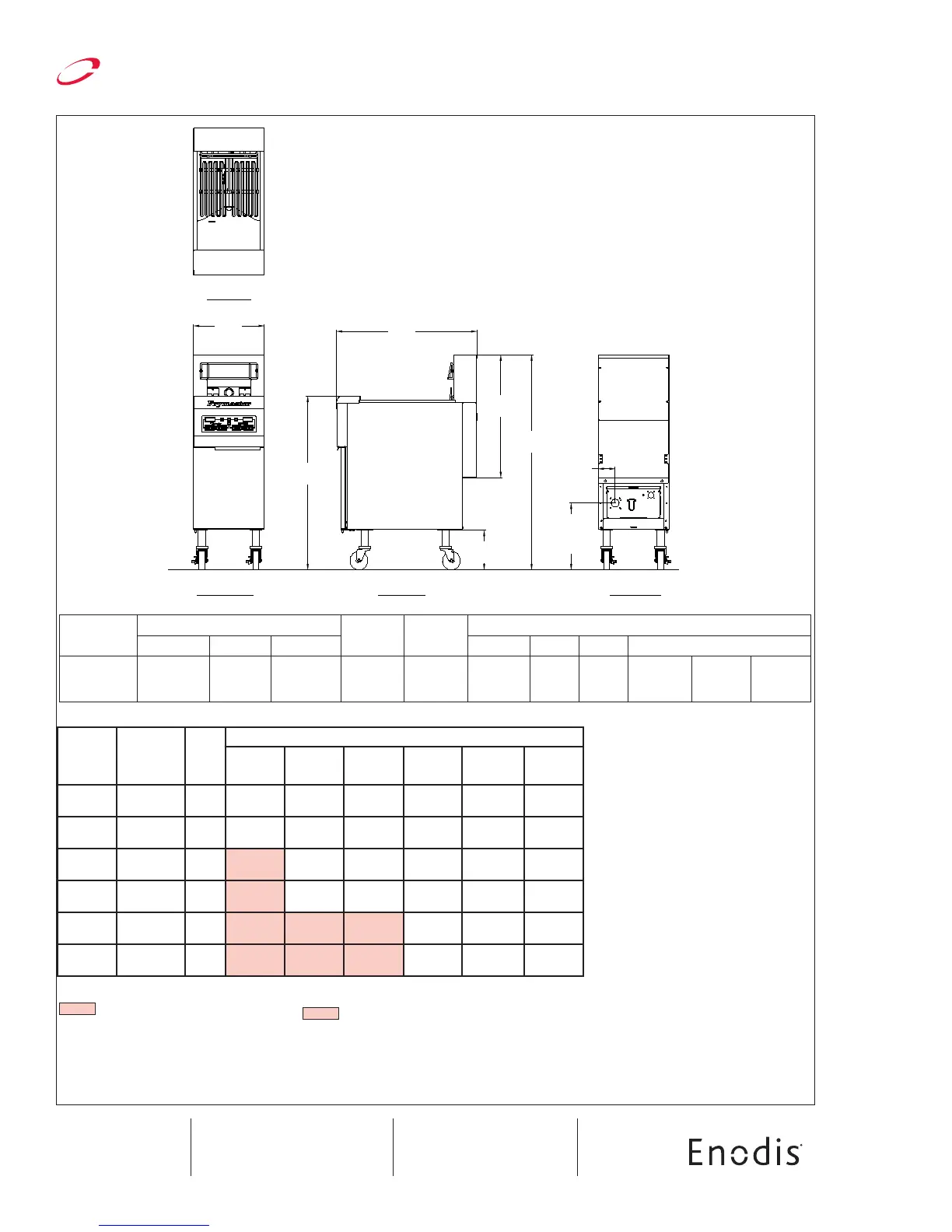
MODEL NO. OVERALL SIZE cm NET
WEIGHT
DRAIN
HEIGHT
SHIPPING INFORMATION
HEIGHT WIDTH LENGTH WEIGHT CLASS CU. FT. DIMENSIONS
RE14/17/22 45.30
(1149 mm)
15.6*
(397 mm)
31.0
(786 mm)
150 lbs.
(68 kg)
11.8
(299 mm)
190 lbs.
(86 kg)
85 21.31 H
46.50
(1181 mm)
W
22
(559 mm)
L
36
(914 mm)
DIMENSIONS
POWER REQUIREMENTS
HOW TO SPECIFY
RE14 Full pot, solid state controls
RE14-2 Split pot, solid state controls
RE17 Full pot, solid state controls
RE17-2 Split pot, solid state controls
RE22 Full pot, solid state controls
RE22-2 Split pot, solid state controls
SD Stainless steel pot, door , enamel cabinet
SC Stainless steel pot, door and cabinet
NOTES
CORD is provided on 3 phase units
with exception of items in red (see
chart on left).
Plug is optional on units shipping
with cord; Canada is an exception
and cords, where available, must
have a plug attached.
Single phase units must be field
wired. No cord or plug provided.
Check electrical codes for proper
supply line sizing.
CE Voltage: 230/400/50/3
CLEARANCE INFORMATION
A minimum of 24 (610 mm) should
be provided at the front of the unit
for servicing and proper operation,
6” (152 mm) between the sides and
rear of the fryer to any combustible
material.
15.6
[397]
45.3
[1149]
25.9
[657]
36.6
[929]
31.0
[786]
14.1
[358]
CORDSET
LOCATION
3.7
[95]
CORDSET
LOCATION
8.3
[212]
TOP VIEW
FRONT VIEW SIDE VIEW BACK VIEW
We reserve the right to change specications appearing in this bulletin without incurring any obligation for equipment previously or subsequently sold.
*without basket lifts
MODEL
NUMBER
OIL
CAPACITY
MIN.MAX.
INPUT
KW
NOMINAL AMPS PER LINE
208V
3 PHASE
3 WIRE**
240V
3 PHASE
3 WIRE**
480V
3 PHASE
3 WIRE**
220/380V
3 PHASE
4 WIRE**
230/400V
3 PHASE
4 WIRE**
240/415V
3 PHASE
4 WIRE**
RE14 40-50 lbs.
(20-25 liters)
14 39 34 17 22 21 20
RE14-2 20-25 lbs.
(10-12 liters)
7 39 34 17 22 21 20
RE17 40-50 lbs.
(20-25 liters)
17 48
+
41 21 26 25 24
RE17-2 20-25 lbs.
(10-12 liters)
8.5 ea.
side
48
+
41 21 26 25 24
RE22 40-50 lbs.
(20-25 liters)
22 61 53 27 34 32 31
RE22-2 20-25 lbs.
(10-12 liters)
11 61 53 27 34 32 31
**plus ground wire For electrical connections, use an approved, flexible, metallic or rubber covered,
electrical cable and plug with copper wire only.
No cord or plug available per UL197-9.
+
Cord and plug optional.

Related product manuals