EasyManua.ls Logo

FUNAI 27A-664 - Wiring Diagram

FUNAI 27A-664
74 pages
Print Icon
To Next Page IconTo Next Page
To Next Page IconTo Next Page
To Previous Page IconTo Previous Page
To Previous Page IconTo Previous Page
Loading...
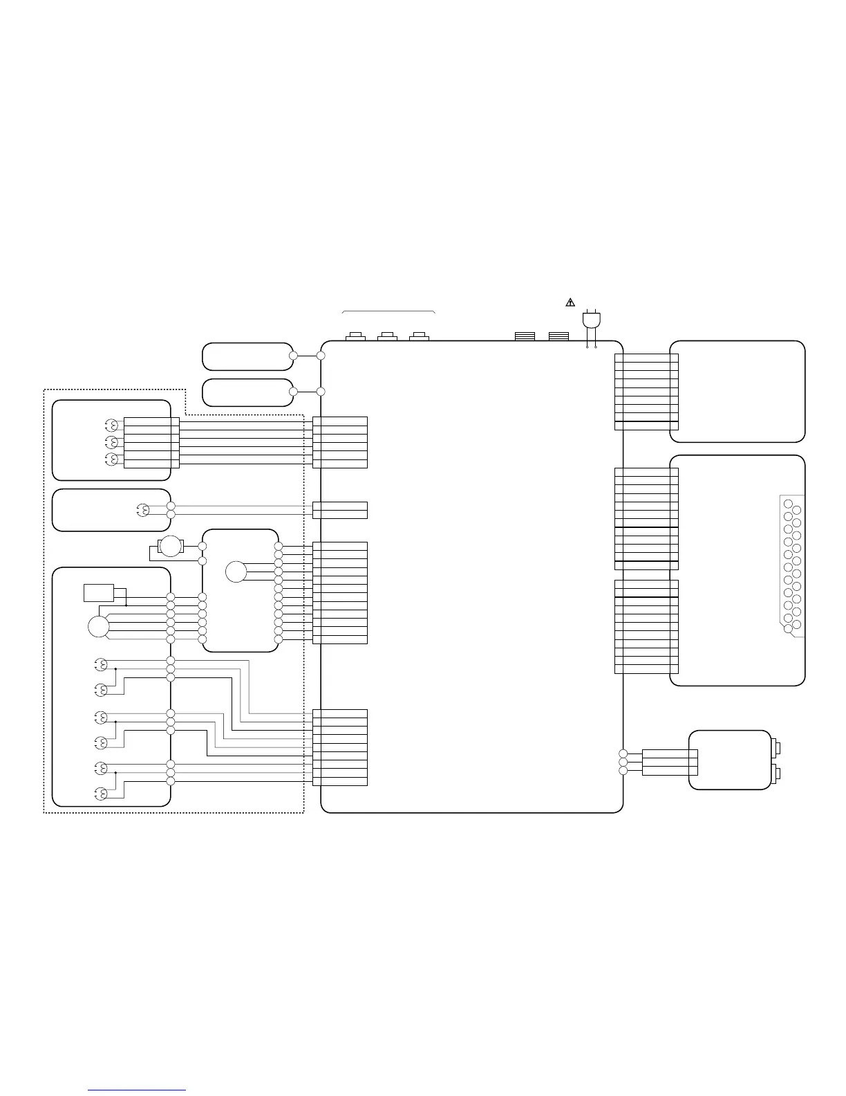
WIRING DIAGRAM
HE451WI1-10-1 1-10-2
AC HEAD ASSEMBLY
AUDIO HEAD
AUDIO
ERASE HEAD
CONTROL HEAD
AE-H
AE-H/FE-H
A-COM
A-PB/REC
CTL(+)
CTL(-)
6
5
4
3
2
1
CL287
MLOADING
MOTOR
CYLINDER ASSEMBLY
AE-H
1
AE-H/FE-H2
A-COM3
A-PB/REC4
CTL(+)5
CTL(-)
6
Hi-Fi-A(L)7
Hi-Fi-COM8
Hi-Fi-A(R)9
V-COM5
V(R)-26
V(R)-11
V-COM2
V(L)-2
3 V(L)-1
4
P-ON+5V
1 AL+12V/+20.5V
2
C-F/R
3 C-FG
4
C-CONT5
GND
6
LM-FWD/REV
7
D-CONT8
D-PG9
GND
10
AL+12V(2)
11
P-ON+15V12
FE-H2
FE-H GND1
CL501
CL502
CL504
CL253
GND
1 V-OUT1
2
AL+12V(1)
3 V-IN1
4
NU5
A-OUT1(R)
6
JK1-8P-OUT
7
A-IN1(L)8
NU9
A-IN1(R)
10
GND
11
A-OUT1(L)12
1
2
3
4
5
6
7
8
9
10
11
12
CL151 CL101
CAPSTAN MOTOR
FULL
ERASE HEAD
FE HEAD
VIDEO
(R)1
HEAD
VIDEO
(L)1
HEAD
SIF
1 NU
2
TU-AUDIO(R)
3 GND
4
TU-AUDIO(L)5
P-ON+5V
6
P-ON+5V
7
IIC-BUS SCL8
IIC-BUS SDA9
1
2
3
4
5
6
7
8
9
CN701 CN1
GND
1 V-OUT2
2
NU
3 V-IN2
4
GND5
A-OUT2(R)
6
SC2-IN
7
A-IN2(L)8
A-IN2(R)9
GND
10
A-OUT2(L)
11
1
2
3
4
5
6
7
8
9
10
11
CL152 CL102
AC CORD
ANT-IN ANT-OUT
VIDEO
IN
AUDIO
IN (R)
AUDIO
IN (L)
FRONT
VIDEO
(L)2
HEAD
VIDEO
(R)2
HEAD
Hi-Fi AUDIO
(L) HEAD
Hi-Fi AUDIO
(R) HEAD
M
DRUM
MOTOR
PG
SENSOR
MAIN CBA
1
2
3
4
5
6
7
8
9
10
11
12
13
14
15
16
17
18
19
20
21
JACK CBA
(BHE470F01013C)
(BHE470F01013A)
AFV CBA
(BHC400F01091)
JK101,102
(DECK ASSEMBLY)
SENSOR CBA
(BHB300F01014)
SENSOR CBA
(BHB300F01014)
M
CAPSTAN
MOTOR
AUDIO
OUT(R)
AUDIO
OUT(L)
CL509
SUB JACK CBA
(BHE470F01013B)
1
A-OUT1(R)
2
A-OUT1(L)
3
GND

Related product manuals