EasyManua.ls Logo

GE AKD-10 - Page 37

GE AKD-10
66 pages
Print Icon
To Next Page IconTo Next Page
To Next Page IconTo Next Page
To Previous Page IconTo Previous Page
To Previous Page IconTo Previous Page
Loading...
36
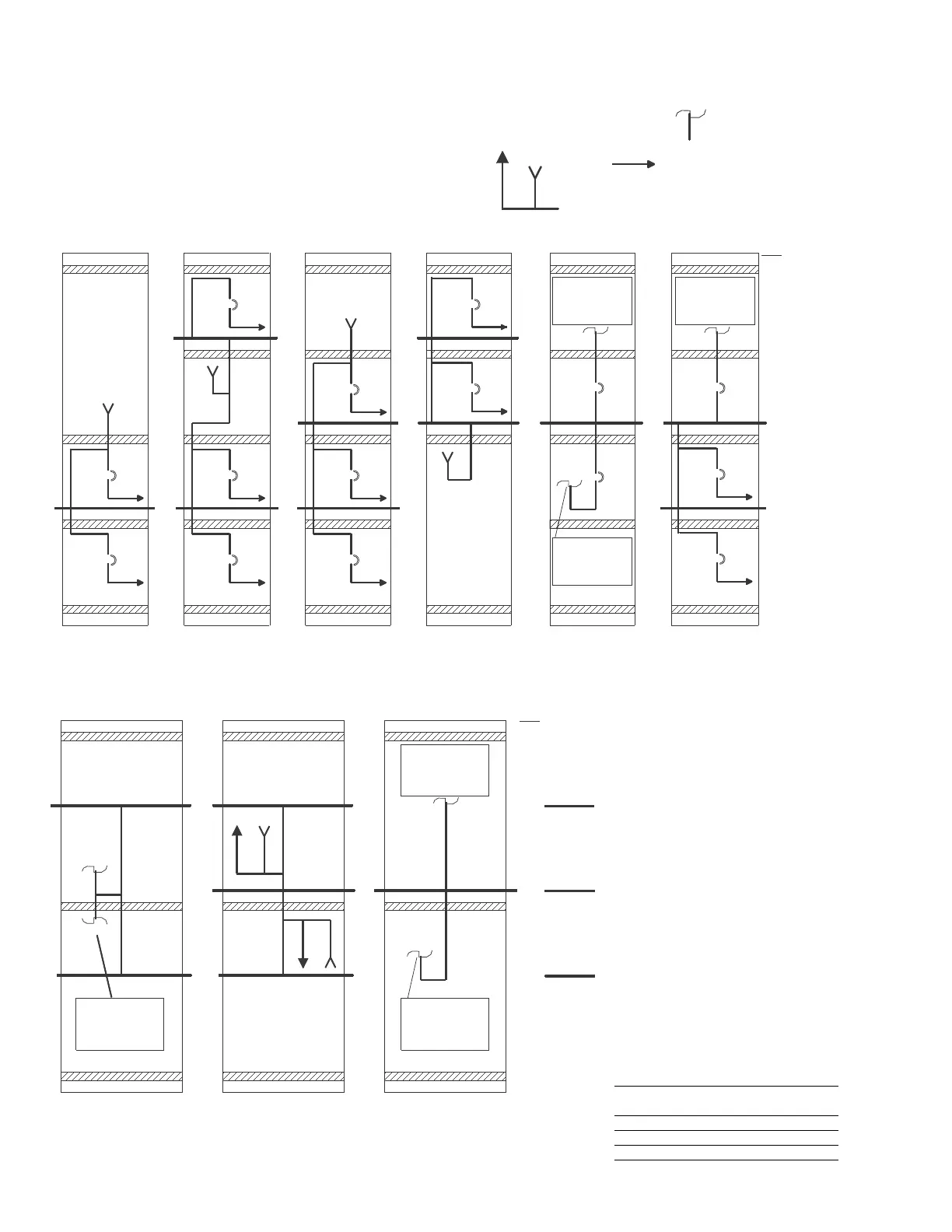
BUS CONN FDR
W/ CABLE TAP
BELOW=FRONT POS'N
ABOVE=REAR POS'N
BUSWAYS
ABOVE=FRONT POS'N
BELOW=REAR POS'N
BUSWAYS
AUXILIARY WITH
BUSWAY
AX2230-3
30" WIDE WITH 4-WIRE BUSWAY
22 / 30"
AUXILIARY WITH
CABLE TAP
INCOMING-OR-OUTGOING
LEADS ABOVE-OR-BELOW
REAR POSITION
ABOVE-OR-BELOW
BUSWAYS
AX2230-1
AUXILIARY WITH
BUSWAY
22 / 30"
42"
B/W
B/W
42"
42"
AX2230-2
22 / 30"
CABLE TAP-OFF
TO MAIN BUS
42"
B/W
B/W
F22-9
BUS CONN FDR
W/ CABLE TAP
22"
4
2"
F22-8
BUS CONN FDR
W/ CABLE TAP
8
00-
2000A
800-
2000A
22"
2
1"
21"
21"
21"
F22-10
BUS CONN FDR
W/ CABLE TAP
8
00-
2000A
2
1"
21"
800-
2000A
8
00-
2000A
22"
2
1"
21"
800-
2000A
800-
1600A
2
1"
800-
2000A
21"
42"
92"
BUS
MID
BUS
BUS
LOWER
UPPER
42"
*
30" WIDE WITH 4-WIRE BUSWAY
21" 21"
BUSWAY CONN
FEEDER
BELOW=FRONT POS'N
ABOVE=REAR POS'N
F22-11
22"
4
2"
F22-12
2
1"
22"
21"
BUSWAYS
800-
2000A
B/W
A
BOVE=FRONT POS'N
BELOW=REAR POS'N
21"
800-
1600A
8
00-
2000A
BUSWAYS
8
00-
2000A
21"
B
/W
21"
800-
2000A
8
00-
2
000A
F22-13
BUSWAY CONN
FEEDER
21"
22"
21"
8
00-
2000A
BUSWAYS
A
BOVE=FRONT POS'N
BELOW=REAR POS'N
21"
B
/W
9
2"
À
R
efer to page 45 for busw
ay auxiliary
section width vs busw
ay amper
e rating
Á
Section width vs cable tap-off rating
Cable tap-off
Minimum section
rating width (inches)
1600-2000A 22
3200-4000A 30
5000A See page 42
Á
À
À
CABLE CONNECTION (OTHER THAN FEEDER BREAKER)
INCOMING
OUTGOING
MID BUS LEVEL IS NOT AVAILABLE AT 5000A
(USE ONLY UPPER OR LOWER BUS LEVELS)
LEGEND & NOTES
*
FEEDER CABLE CONNECTION
B
USWAY CONNECTION
B
/W
22” Feeder sections, 22/30" auxiliary sections

Related product manuals