EasyManua.ls Logo

GE UNC15NP - Dimensions

GE UNC15NP
92 pages
Print Icon
To Next Page IconTo Next Page
To Next Page IconTo Next Page
To Previous Page IconTo Previous Page
To Previous Page IconTo Previous Page
Loading...
12 49-1000610 Rev. 2
Water inlet:1/4"
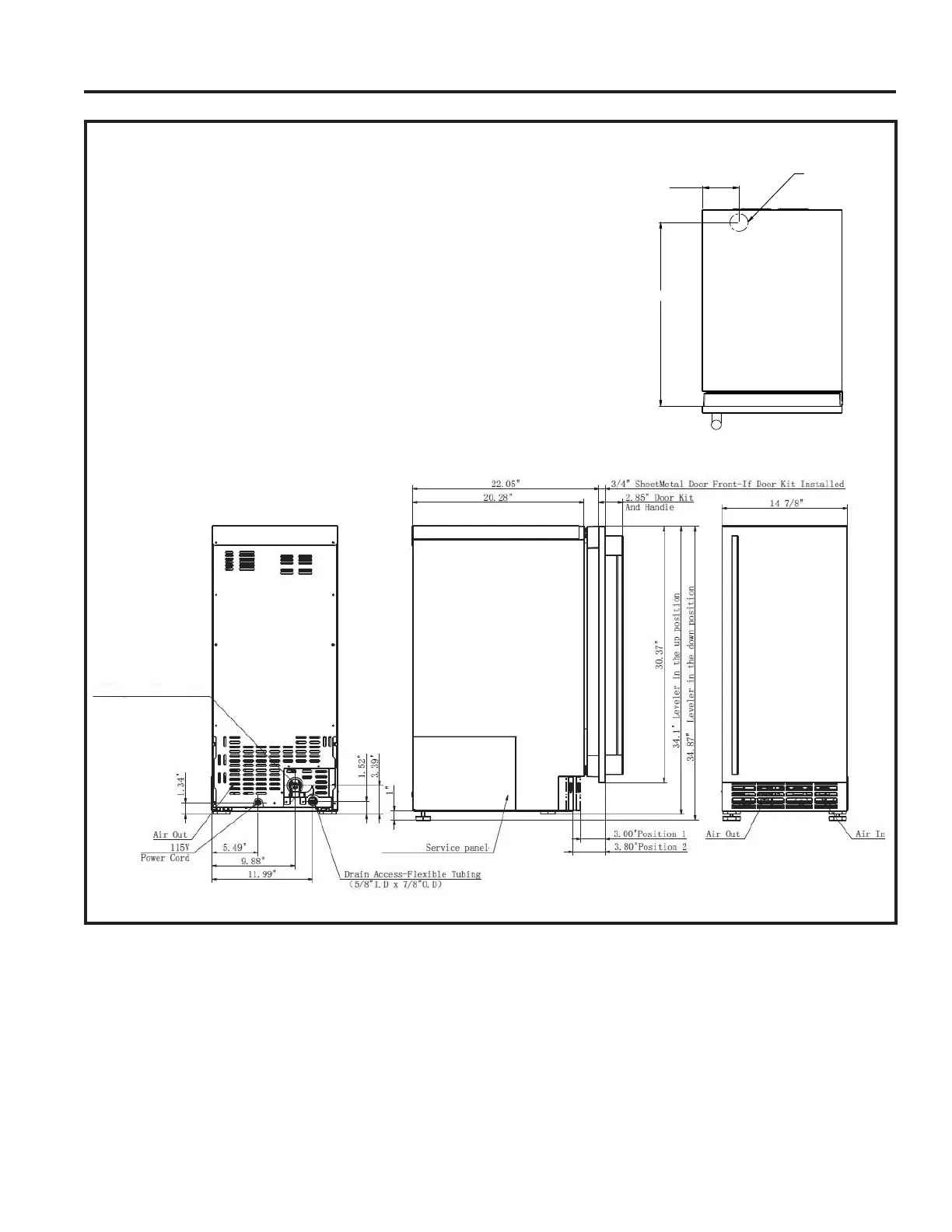
DIMENSIONS
Installation Instructions
INSTALLATION INSTRUCTIONS
3 7/8"
20 3/8"
FLOOR DRAIN
ACCESS HOLE

Related product manuals