EasyManua.ls Logo

GE UNC15NP - Panel de la Puerta

GE UNC15NP
92 pages
Print Icon
To Next Page IconTo Next Page
To Next Page IconTo Next Page
To Previous Page IconTo Previous Page
To Previous Page IconTo Previous Page
Loading...
49-1000610 Rev. 2 15
Instrucciones de instalación
INSTRUCCIONES DE INSTALACIÓN
INSTALACIÓN DEL PANEL DE LA PUERTA
La máquina de hielo se suministra sin una cobertura
de puerta convencional, permitiendo la adhesión de un
panel de puerta o un panel a medida.
NOTA: Si es necesario modificar el balanceo de la
SXHUWDHVWRVHGHEHUiUHDOL]DU$17(6GHODDGKHVLyQ
del panel de la puerta.
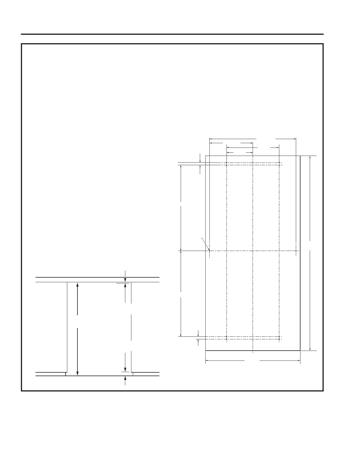
Panel de la Puerta
Los paneles de puerta con terminación y manijas están
disponibles a través de GE Appliances para la adhesión a la
máquina de hielo. Consulte la sección de Accesorios en la
página 21.
Se podrá usar un panel de madera u otro material a medida
que no supere las 15 lbs., y se deberán seguir estas pautas:
ancho: 14 7/8”
alto: entre 29 5/8” y 30 5/8”
grosor: 5/8” a 3/4”
Para el Panel a Medida:
1. Coloque el producto en la abertura y realice su
nivelación ajustando las tapas niveladoras según sea
necesario.
2. Mida cuánto es necesario extender el panel a medida,
si esto es necesario, sobre el panel de la puerta interior
a fin de hacer coincidir cualquier panel sobre cualquiera
de los lados. Observe que el espacio libre entre la
parte superior del panel y la mesada deberá poseer un
mínimo de 1/8".
3. Retire la puerta quitando los 4 tornillos de las bisagras.
4. Corte el panel hasta el ancho especificado y a la altura
deseada.
5. Apoye el panel sobre una superficie y alinee la puerta
sobre el panel de modo que quede ubicada de acuerdo
con lo medido en el paso 2. Los lados del panel se
deberán alinear con los lados de la puerta.
6. Marque las ubicaciones de por lo menos 4 agujeros
en la parte superior e inferior. Retire la puerta y mida
y marque cualquier agujero restante de acuerdo con el
diagrama.
7. Perfore agujeros piloto en la parte trasera del panel de
acuerdo con sus marcas. Use un tope de broca para
evitar atravesar el panel al perforar.
Cabinet
opening
1/8” or greater
clearance
Toekick
height
13-9/16”
8-1/4”
6-25/32”
4-1/8”
14.0”
14-7/8”
Ligne centrale
13-3/16”
30-5/8”
29-5/8”
51/64”
୉´
TYP (10)
51/64"

Related product manuals