EasyManua.ls Logo

Geist Upgradable PDU - 7 Extension Brackets (XB-7); Flush Mount Brackets (FM)

Geist Upgradable PDU
74 pages
Print Icon
To Next Page IconTo Next Page
To Next Page IconTo Next Page
To Previous Page IconTo Previous Page
To Previous Page IconTo Previous Page
Loading...
Chapter 2 - Installation 21
© 2017 Geist
GM1157
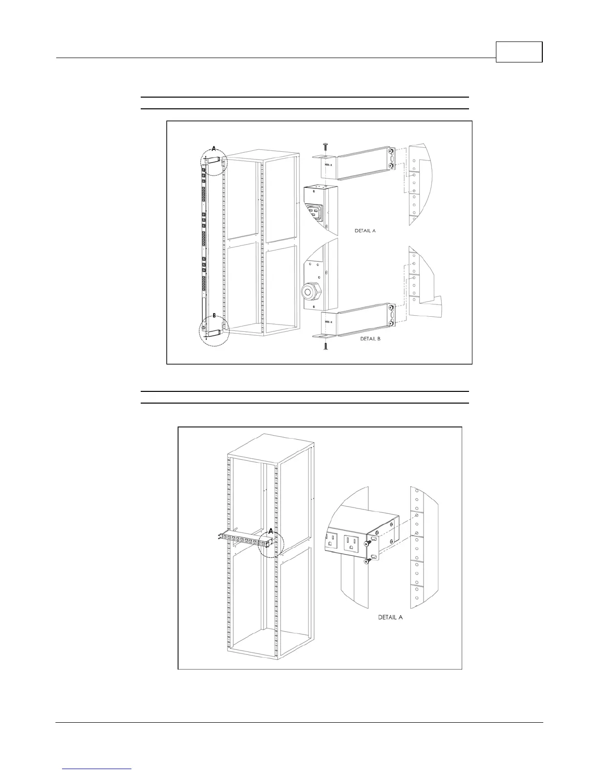
7" Extension Brackets (XB-7)
Figure 2-8 7" Extension Brackets
Flush Mount Brackets (FM)
Figure 2-9 Flush Mount Brackets

Table of Contents

Related product manuals