EasyManua.ls Logo

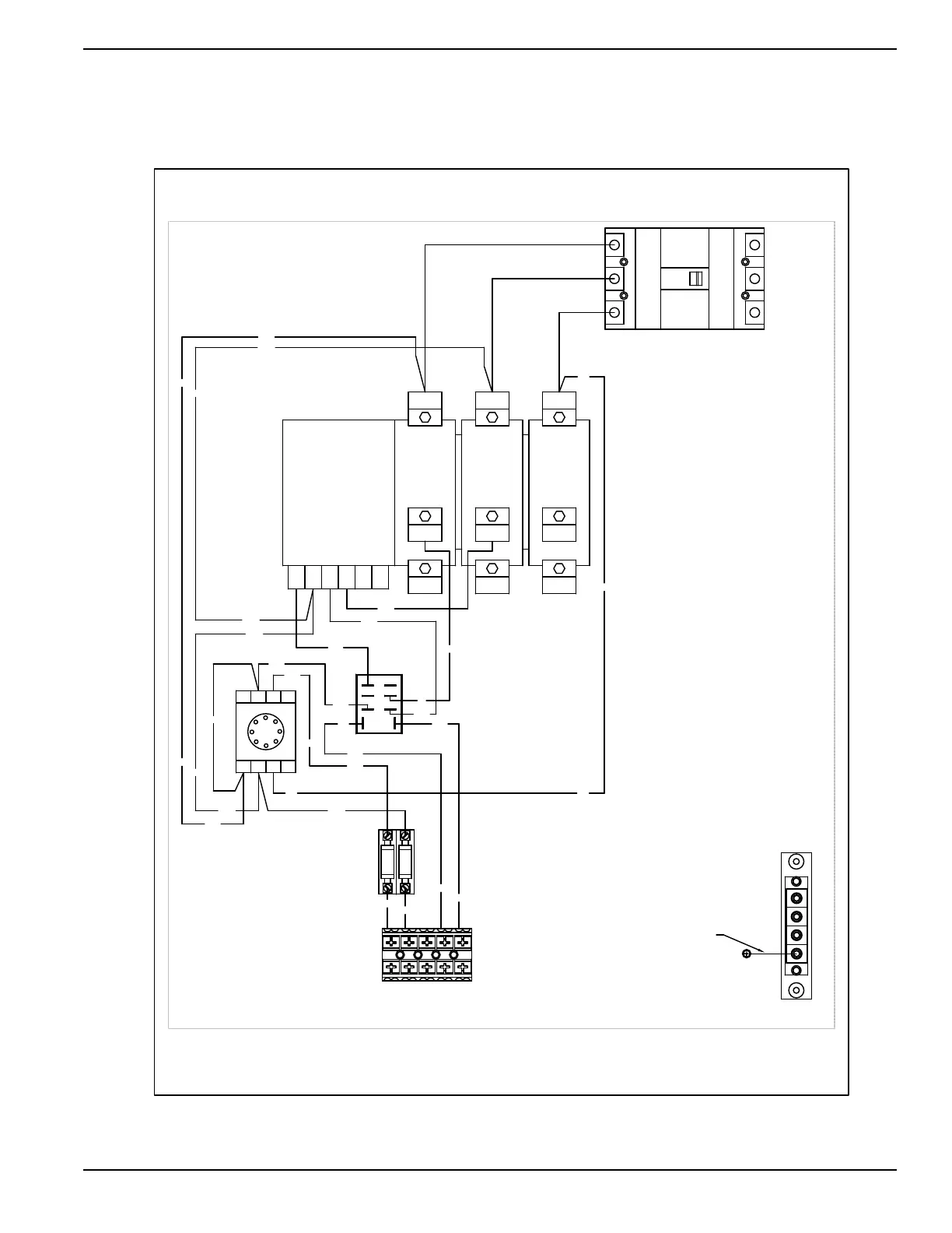
Generac Power Systems RTSW200K3 - Wiring Diagram; 100-200 A 240 VAC (Drawing 0 L2832, Sheet 2 of 2)

Generac Power Systems RTSW200K3
32 pages
Print Icon
To Next Page IconTo Next Page
To Next Page IconTo Next Page
To Previous Page IconTo Previous Page
To Previous Page IconTo Previous Page
Loading...
Drawings and Diagrams
Automatic Transfer Switch Owner’s Manual 19
Wiring Diagram
100-200A 240VAC (Drawing 0L2832, Sheet 2 of 2)
UTILITY 1
UTILITY 2
23
194
N3
E3
T3
23
N1A
4
N1B
N2A
3
N1A
N3
56
1
PM
2
N1A
87
N1B
TR
126
A1
B2
A2
B1
F2
N2
N1
F1
23
194
205
194
205
E1
T2
E2
T1
T1
E1
T2
E2
N1B
N2A
ATS
N2A
N1B
N1 N2
NB
N3
N3
N3
UCB
GND
N1B
N2A
N2A
N2A
N1B
23
E1
N2A
N1B
NOTE:
BONDING JUMPER
IS REMOVEABLE
M
8
X25
PEM
STUD
0
E
7
50
8-
T
8
7
43
56
12
GROUP G
WIRING - DIAGRAM
100-400 AMP 240VAC
DRAWING #: 0L2832
REVISION: "A"
DATE: 08/25/15
001263

Table of Contents

Related product manuals