EasyManua.ls Logo

Genius BRAIN 06 24V - 7 Installatie Accessoires Met Busaansluiting; Adressering Fotocellen Met Busaansluiting

Genius BRAIN 06 24V
Print Icon
To Next Page IconTo Next Page
To Next Page IconTo Next Page
To Previous Page IconTo Previous Page
To Previous Page IconTo Previous Page
Loading...
45
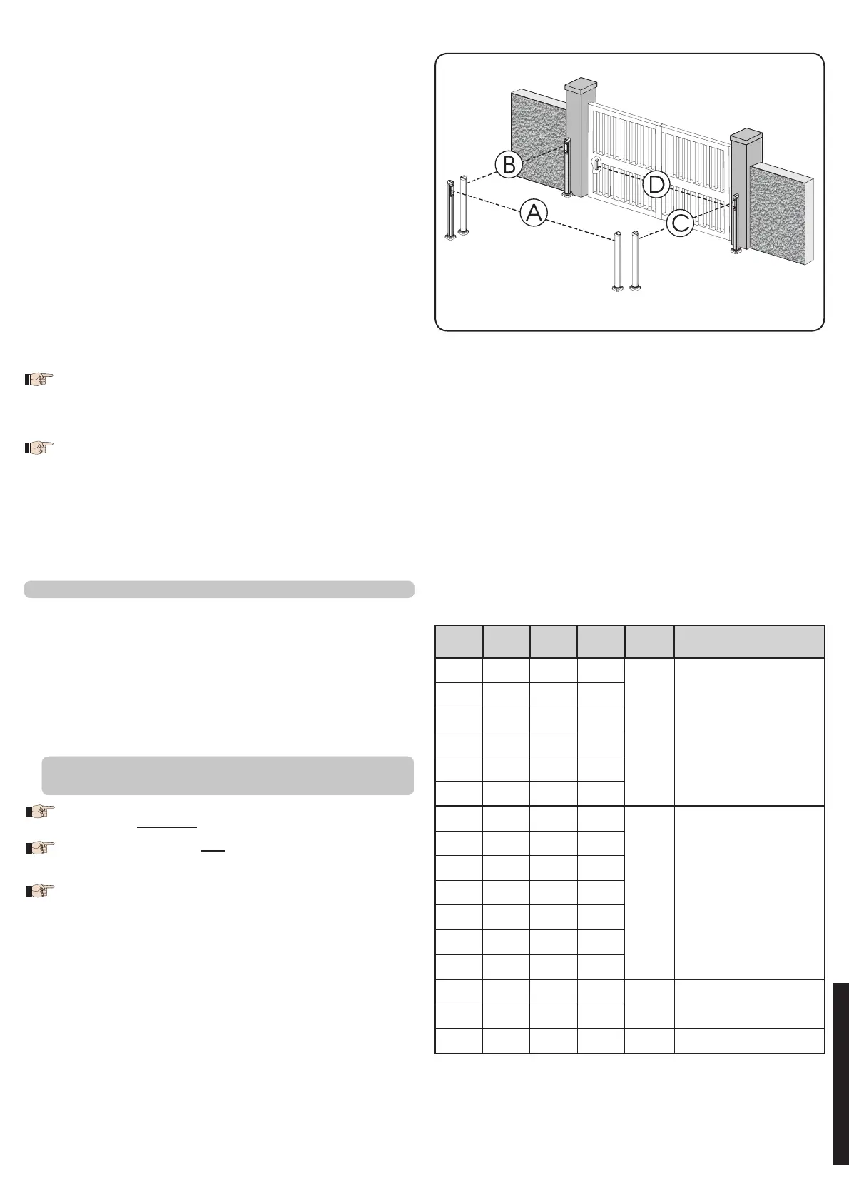
Fig. 2
NEDERLANDS
7 INSTALLATIE ACCESSOIRES MET BUSAANSLUITING
Deze kaart is voorzien van een BUS-circuit waarmee op eenvoudige
wijze een groot aantal, speciaal daarvoor geprogrammeerde BUS-
accessoires kan worden aangesloten (bijv. tot 16 paar fotocellen),
door slechts twee kabels zonder polariteit te gebruiken.
Hieronder zijn de adressering en de opslag in het geheugen van
BUS-fotocellen beschreven.
Voor andere toekomstige accessoires, zie de specifieke instructies
daarvan.
7.1 ADRESSERING FOTOCELLEN MET BUSAANSLUI-
TING
Het is van belang dat aan de zender en de
ontvanger hetzelfde adres wordt gegeven.
Zorg ervoor dat er niet twee of meer paren
fotocellen zijn met hetzelfde adres.
Als er geen enkel BUS-accessoire wordt gebruikt,
laat dan de BUS-connector (J10 – fig. 1) vrij.
Er kunnen maximaal 16 paar BUS-fotocellen op de kaart worden
aangesloten.
De fotocellen zijn in groepen verdeeld:
Fotocellen voor opening: max. 6
Fotocellen voor sluiting: max. 7
Fotocellen voor opening/sluiting: max. 2
Fotocel die wordt gebruikt als OPEN-impuls: max. 1
Dip1 Dip2 Dip3 Dip4 Ref. Type
OFF OFF OFF OFF
B -C
OPENING
OFF OFF OFF ON
OFF OFF ON OFF
OFF OFF ON ON
OFF ON ON OFF
OFF ON ON ON
ON OFF OFF OFF
D
SLUITING
ON OFF OFF ON
ON OFF ON OFF
ON OFF ON ON
ON ON OFF OFF
ON ON OFF ON
ON ON ON OFF
OFF ON OFF OFF
A
OPENING en
SLUITING
OFF ON OFF ON
ON ON ON ON / OPEN-IMPULS
Tab. 3 - Adressering fotocellen BUS
In tab. 3 zijn de programmeringen van de dipschakelaars
binnenin de zender en de ontvanger van de BUS-fotocellen
weergegeven.
In fig. 2 is een automatisch systeem weergegeven met 2 vleugels,
met aanduiding van het bereik van de fotocellen:
A: Fotocellen die ingrijpen tijdens OPENING en SLUITING
B: Fotocellen die ingrijpen tijdens OPENING
C: Fotocellen die ingrijpen tijdens OPENING
D: Fotocellen die ingrijpen tijdens SLUITING
Als een LAGE kracht is ingesteld, wacht dan ongeveer 5 sec.
om te controleren of het lichtsignaal uitgaat.
Indien de A-logica is geselecteerd, begint de kaart de
pauzetijd af te tellen (max. 10 min.) en geeft hij na de
gewenste tijd een OPEN-impuls om verder te gaan met de
procedure. Als daarentegen de EP-logica is geselecteerd,
geef dan een OPEN-impuls om verder te gaan met de
procedure.
Vleugel 2 (indien aanwezig) start de sluitingsbeweging en de
kaart begint de vertragingstijd van de vleugel bij het sluiten
af te tellen.
Geef, nadat de gewenste vertragingstijd is verlopen, een
OPEN-impuls om vleugel 1 de sluitingsbeweging te laten
beginnen. Als vleugel 2 niet aanwezig is zorgt de impuls die
bij punt 9 is gegeven ervoor dat vleugel 1 rechtstreeks wordt
gesloten.
De vleugels 1 en 2 (indien aanwezig) stoppen zodra ze de
mechanische aanslag voor het sluiten hebben bereikt.
Wacht tot de LD4 en LD5 doven, hetgeen betekent dat de
SETUP-procedure is beëindigd.
Als, wanneer de SETUP-procedure is opgestart,
de vleugels bij punt 4 en 5 open in plaats van
dicht gaan, moeten de voedingskabels van de
motoren worden omgedraaid.
Met de HANDMATIGE SETUP zijn de vertragingsruimte
en de vertragingen van de vleugel bij het
openen reeds vastgelegd door de kaart, en
kunnen niet worden gewijzigd. De vertraging
van de vleugel bij het sluiten en de pauzetijd
zijn daarentegen programmeerbaar tijdens de
zelflerende procedure.
9.
10.
11.
12.
13.
14.

Table of Contents

Related product manuals