EasyManua.ls Logo

GFA TS 971 - Page 3

GFA TS 971
28 pages
Print Icon
To Next Page IconTo Next Page
To Next Page IconTo Next Page
To Previous Page IconTo Previous Page
To Previous Page IconTo Previous Page
Loading...
TS 971 Industrial Door Control
3
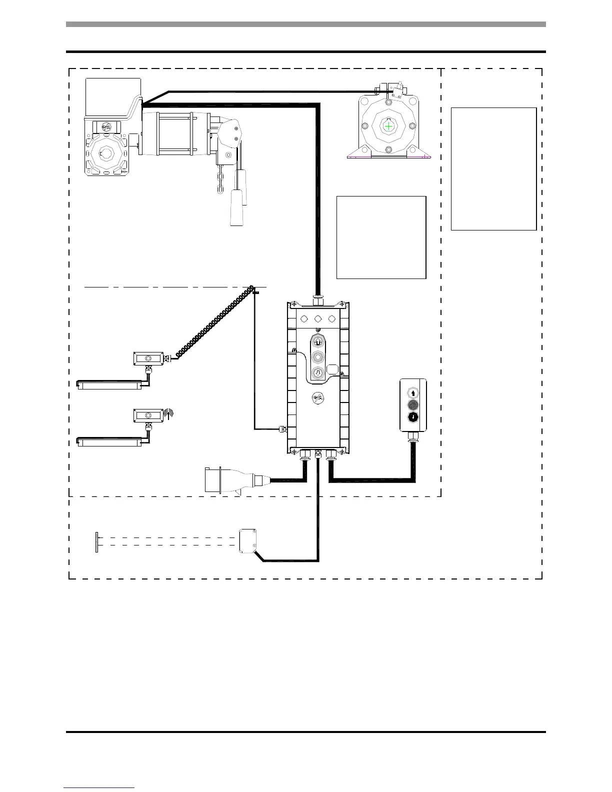
TS 971 - General Layout of Drive and Controls
SAFETY EDGE KIT KSR4P
PHOTO BEAM PES/9R OR PES/30T
DOOR CENTRE LINE
GE3A /
GE3AN
3 PUSH
BUTTON
STATION
SAFETY BRAKE (IF FITTED)
WIRELESS SAFETY EDGE KIT KSR6
Impulse
activation by
trained users
in full view of
the door.
Untrained
users,
activated by
impulse out
of sight of
the door in
public areas
or automatic
control

Other manuals for GFA TS 971

Related product manuals