EasyManua.ls Logo

Graco 16U287 - Page 23

Graco 16U287
34 pages
Print Icon
To Next Page IconTo Next Page
To Next Page IconTo Next Page
To Previous Page IconTo Previous Page
To Previous Page IconTo Previous Page
Loading...
Hydraulic Pump Replacement
311283J 23
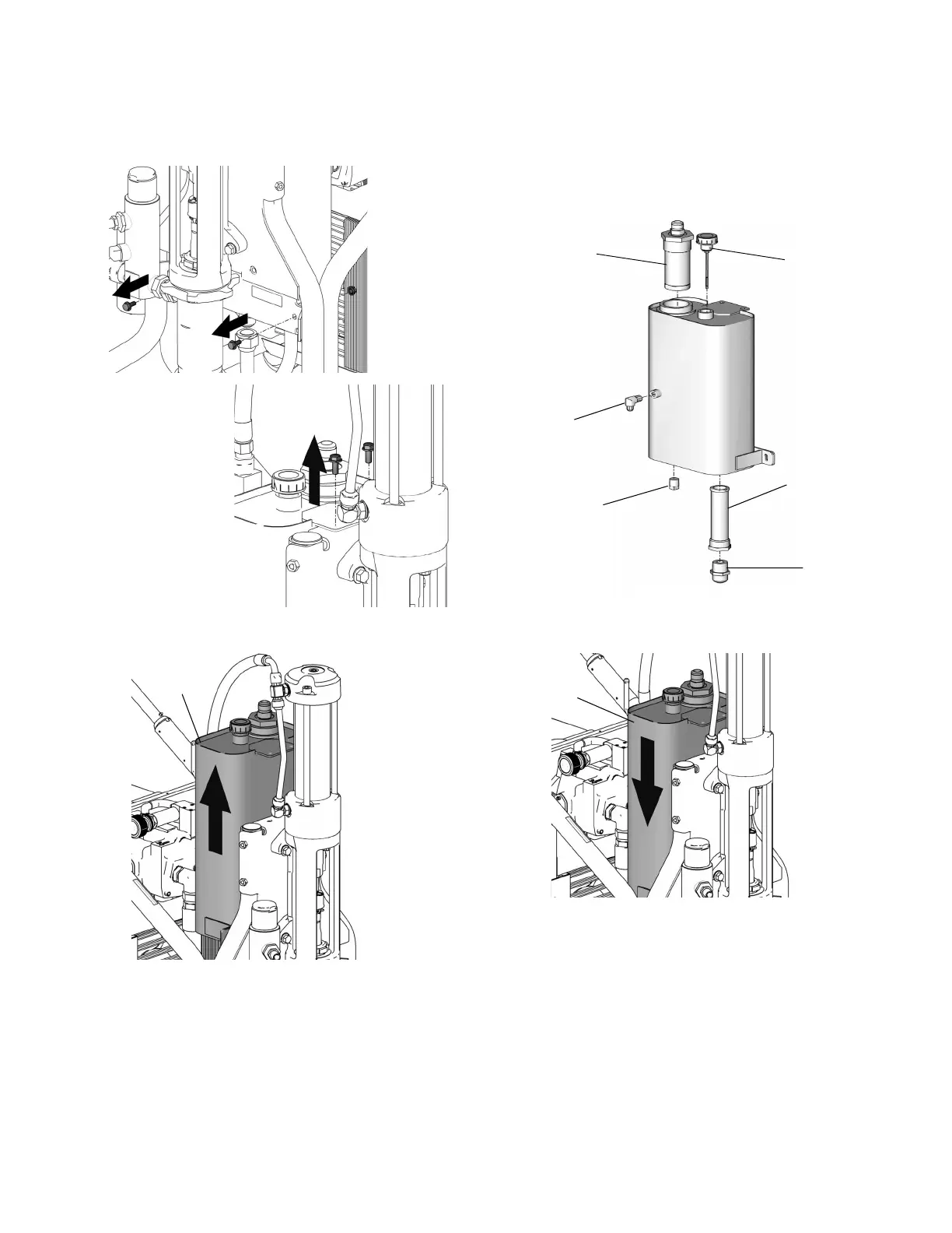
8. Remove two top bolts (86) and two bottom nuts
(84) securing reservoir (64) to frame.
9. Lift reservoir (64) out of frame.
Installation
1. Install plug (102), return elbow (31), suction fitting
(32), inlet screen (89) and filter assembly (111) in
new reservoir (64).
2. Install new reservoir (64) in frame.
ti7846
ti7786
64
ti7806
27
111
32
102
31
89
ti7893
64
ti7781

Related product manuals