EasyManua.ls Logo

Graco D71 - Dimensional Drawings

Graco D71
34 pages
Print Icon
To Next Page IconTo Next Page
To Next Page IconTo Next Page
To Previous Page IconTo Previous Page
To Previous Page IconTo Previous Page
Loading...
30 308443
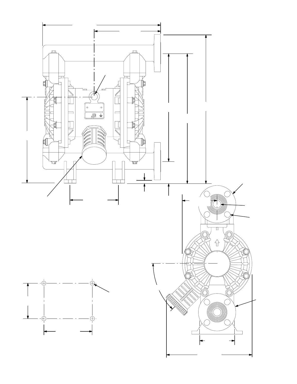
Dimensional Drawings
SIDE VIEW
PUMP MOUNTING HOLE PATTERN
Four 0.5 in.
(12.5 mm)
diameter holes
5.0 in.
(127 mm)
5.5 in.
(139.5 mm)
7337C
(ANSI Flange)
Fluid Outlet
Port Diameter:
1.15 in. (29 mm)
Eight 0.62 in.
(16 mm) slots
5.0 in.
(127 mm)
9.25 in.
(235 mm)
3.95 in.
(100 mm)
45
(ANSI Flange)
Fluid Inlet
FRONT VIEW
3/4 npt(f)
Air Exhaust
(muffler included)
1/2 npt(f)
Air Inlet
12.25 in.
(311 mm)
16.88 in.
(4.28.5 mm)
5.5 in.
(139.5 mm)
2.5 in.
(63.5 mm)
14.75 in.
(374.5 mm)
9.8 in.
(249 mm)
7.57 in.
(192 mm)
.375 in.
(9.5 mm)
13.5 in.
(343 mm)

Related product manuals