EasyManua.ls Logo

Gree FXB5A-K - Page 82

Gree FXB5A-K
207 pages
Print Icon
To Next Page IconTo Next Page
To Next Page IconTo Next Page
To Previous Page IconTo Previous Page
To Previous Page IconTo Previous Page
Loading...
Super Free Match
Service Manual
INSTALLATION
78
2) There is a condensate outlet on both left and right sides of the unit. Once one is confirmed to be used,
the other should be clogged by a rubber plug, bundled by the binding wire and insulated by the
insulation material to avoid water leakage.
3) The right outlet is defaulted to be clogged with a plug.
Caution:No water leakage is allowed on the joint of the condensate pipe.
4.2.11 Design of the Drain Pipe
1) The drain pipe should always keep an inclination angle(1/501/100) to avoid the water gathering in
some certain place.
2) During the connection of the drain pipe and device, do not impose too much force on the pipe on one
side of the device and the pipe should be fixed as close as to the device.
3) The drain pipe can be the ordinary hard PVC pipe which can be purchased locally. During the
connection, inset the end of the PVC pipe to the drain outlet, then tighten it with the drain hose and
binding wire but never connect the drain outlet and the drain hose by adhesive.
4) When the drain pipe is used for multiple devices, the public section of the pipe should be 100mm lower
than the drain hole of each device and it is better to use the much thicker pipe for such a purpose.
4.2.12 Installation of the Drain Pipe
1) The diameter of the drain pipe should be larger or equal to that of the refrigerant pipe (PVC pipe, outer
dimater:25mm, wall thickness1.5mm.
2) The drain pipe should be as short as possible and with at least a 1/100 degree of slope to avoid forming
air pockets.
3) If the proper degree of slope of the drain pipe is not allowed, a lift pipe should be installed.
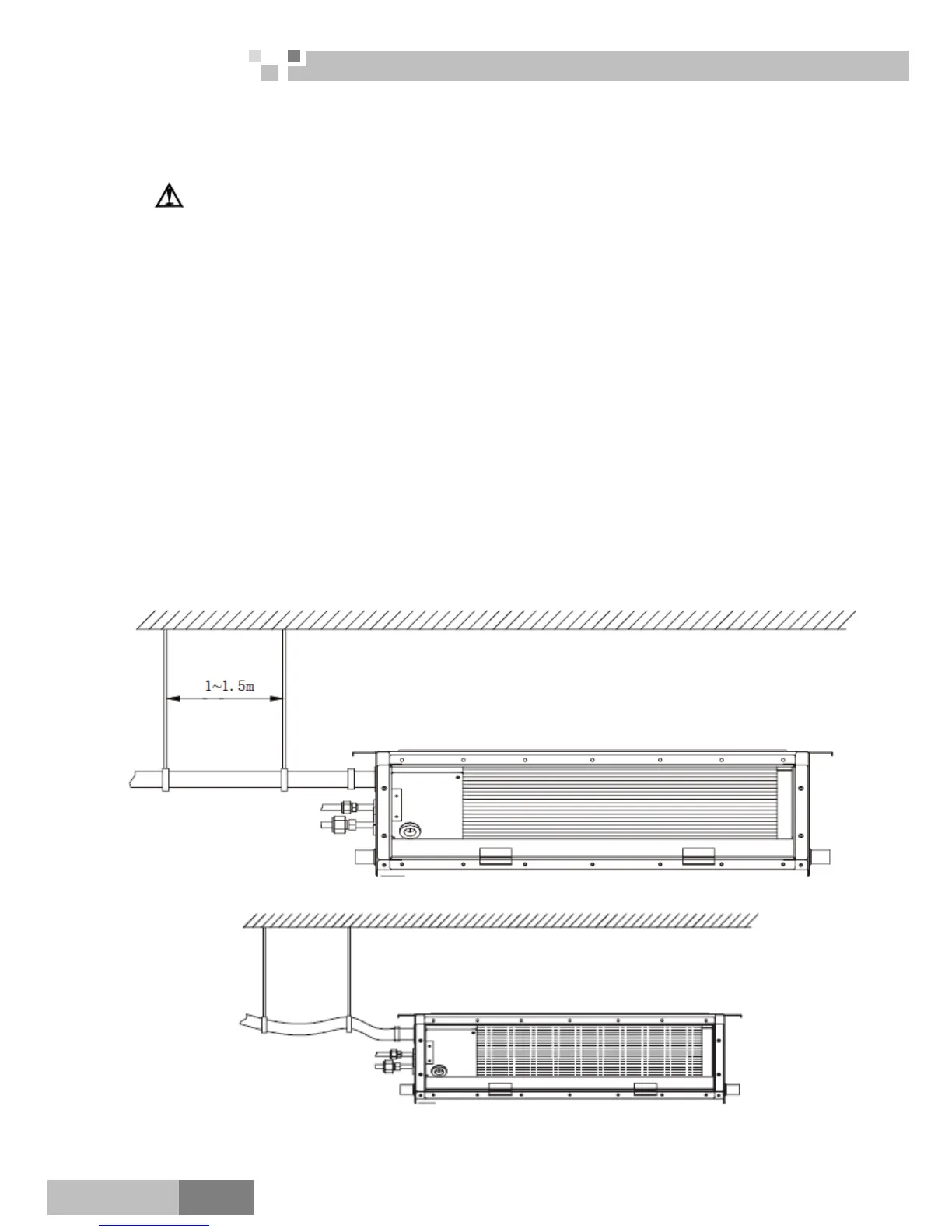
4) A distance 1-1.5m should be kept between the hangers to avoid the drain hose making a turn.
Right
Wrong

Table of Contents

Related product manuals