EasyManua.ls Logo

Gree FXB5A-K - Outline Dimension and Servicing Space of FXB3 A-K

Gree FXB5A-K
207 pages
Print Icon
To Next Page IconTo Next Page
To Next Page IconTo Next Page
To Previous Page IconTo Previous Page
To Previous Page IconTo Previous Page
Loading...
Super Free Match
Service Manual
INSTALLATION
94
Installation at the following places might lead to the air conditioner malfunction. If it is unavoidable, please
contact the appointed service center.
A place which is full of machine oil;
A region with saline-sodic soil near the sea;
A place where the sulphide fog exists, such as the sulphur spring;
A place where the high frequency facilities exist, such as radio equipment, electric welder and medical
equipment;
An environment with special conditions.
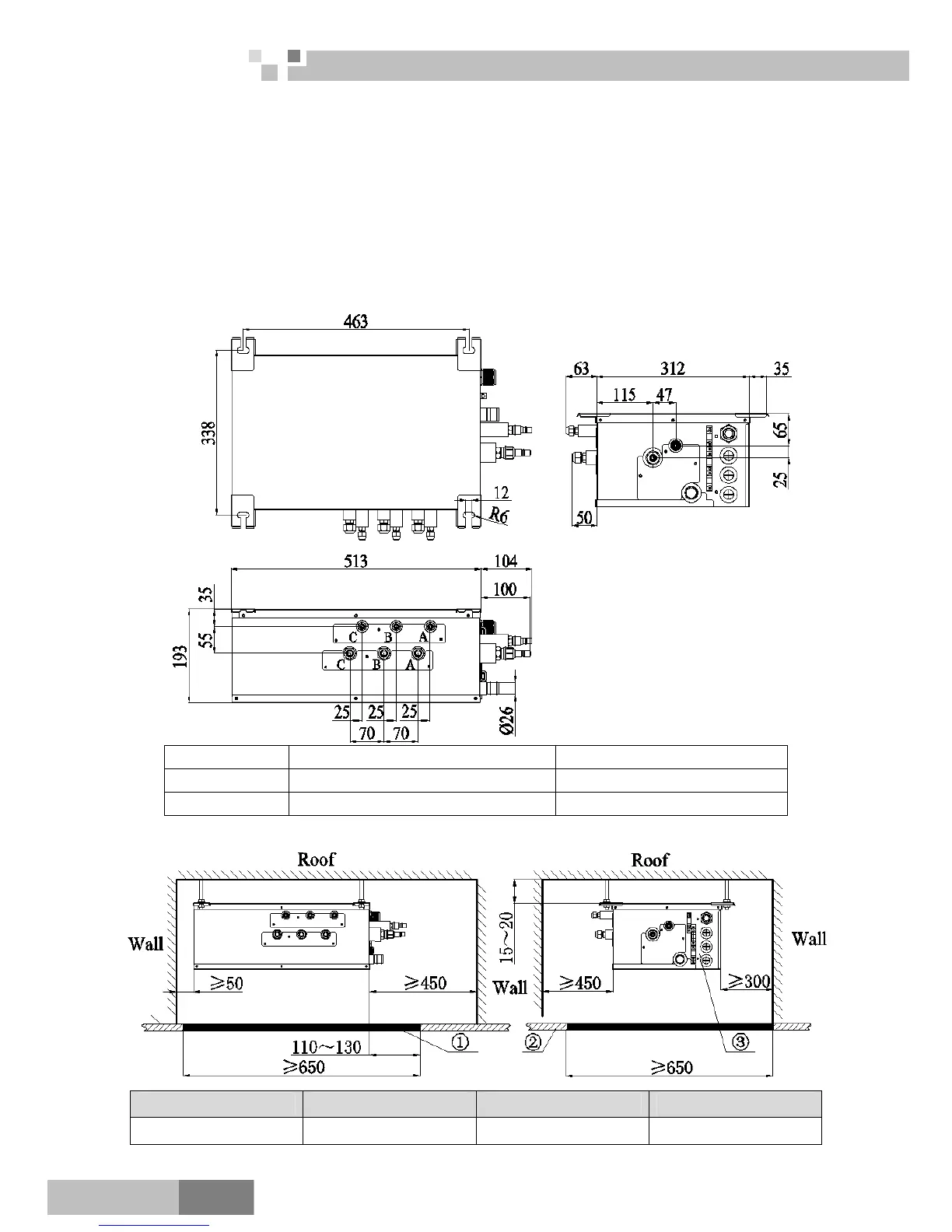
5.4 Outline Dimension and Servicing Space of FXB3A-K
1) Outline dimension
Sorts Indoor unit side (mm) Outdoor unit side (mm)
Liquid pipe Φ6.35 Φ9.52
Gas pipe Φ9.52 Φ15.9
2) Installation and service space
NO.
Name Servicing space Ceiling Electrical box side

Table of Contents

Related product manuals