EasyManua.ls Logo

Gree FXB5A-K - Outline Dimension and Servicing Space of FXB5 A-K

Gree FXB5A-K
207 pages
Print Icon
To Next Page IconTo Next Page
To Next Page IconTo Next Page
To Previous Page IconTo Previous Page
To Previous Page IconTo Previous Page
Loading...
Super Free Match
Service Manual
INSTALLATION95
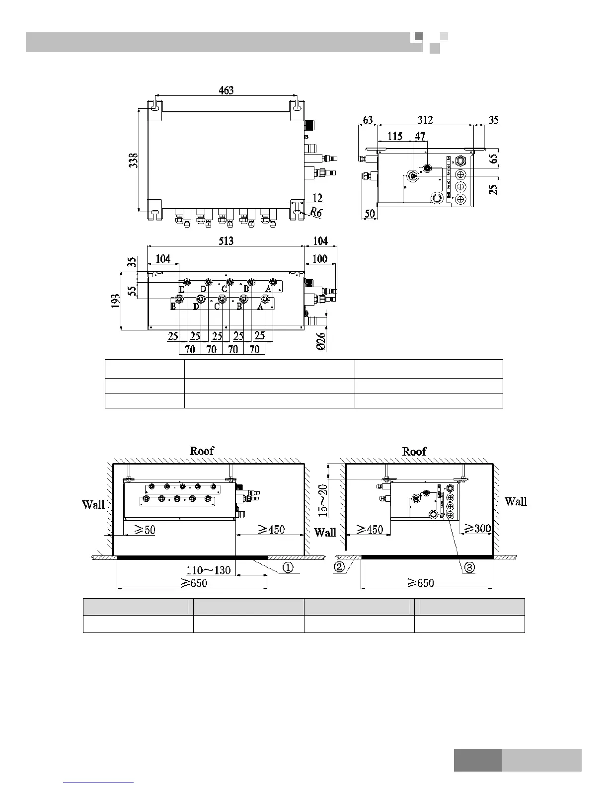
5.5 Outline Dimension and Servicing Space of FXB5A-K
1) Outline dimension
Sorts Indoor unit side (mm) Outdoor unit side (mm)
Liquid pipe Φ6.35 Φ9.52
Gas pipe Φ9.52 Φ15.9
2) Installation and service space
NO.
Name Servicing space Ceiling Electrical box side

Table of Contents

Related product manuals