EasyManua.ls Logo

Gree GMV-560WM/E-X - Installation Space Requirement for ODU

Gree GMV-560WM/E-X
308 pages
Print Icon
To Next Page IconTo Next Page
To Next Page IconTo Next Page
To Previous Page IconTo Previous Page
To Previous Page IconTo Previous Page
Loading...
GREE GMV5E DC INVERTER VRF UNITS SERVICE MANUAL
29
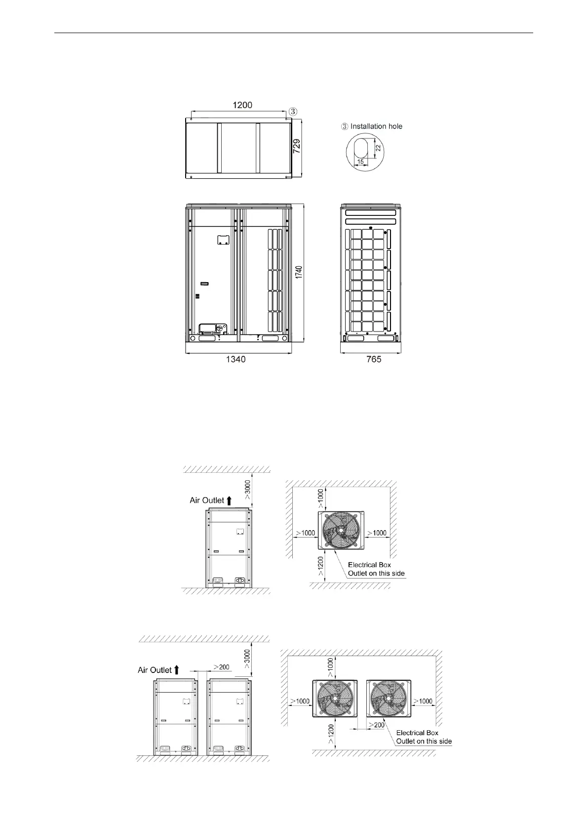
Outline and Physical Dimention of GMV-450WM/E-X, GMV-504WM/E-X, GMV-560WM/E-X and
GMV-615WM/E-X unit.
unit:mm
3.3 Installation Space Requirement for ODU
(1) If all sides of the ODU (including the top) are surrounded by walls, process according to the
following requirements for installation space:
Installation space requirement for single-module unit
unit:mm
Installation space requirement for dual-module unit
unit:mm

Table of Contents

Other manuals for Gree GMV-560WM/E-X

Related product manuals