EasyManua.ls Logo

Gree GMV-560WM/E-X - Piping Connection; Schematic Diagram of Piping Connection; Schematic Diagram of Piping Sequence

Gree GMV-560WM/E-X
308 pages
Print Icon
To Next Page IconTo Next Page
To Next Page IconTo Next Page
To Previous Page IconTo Previous Page
To Previous Page IconTo Previous Page
Loading...
GREE GMV5E DC INVERTER VRF UNITS SERVICE MANUAL
38
Installation personnel should use tube bender when bending the pipe.
6) Don't forbibly stretch the pipe joint, otherwise indoor capillary or other pipes might be
damaged and lead to refrigerant leakage.
5 Piping Connection
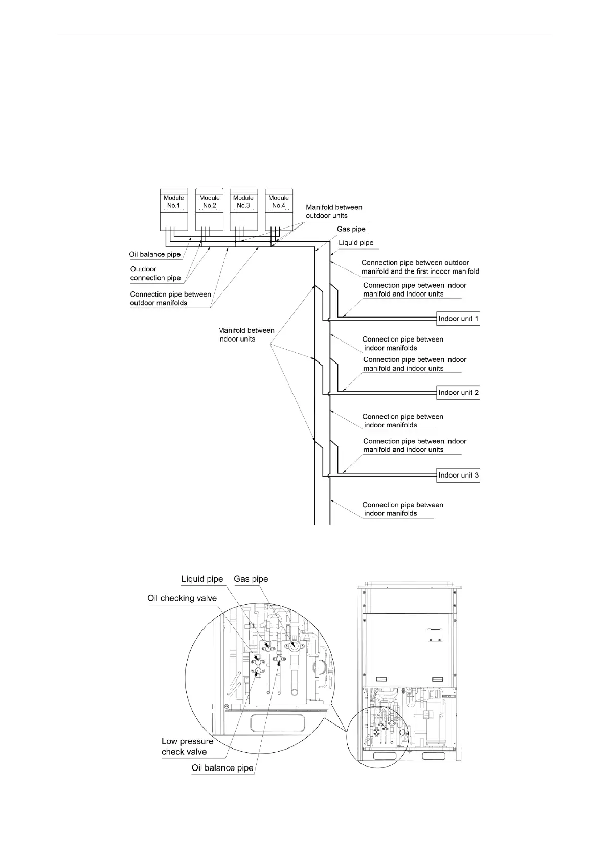
5.1 Schematic Diagram of Piping Connection
5.2 Schematic Diagram of Piping Sequence
GMV-224WM/E-X, GMV-280WM/E1-X and GMV-280WM/E-X

Table of Contents

Other manuals for Gree GMV-560WM/E-X

Related product manuals