EasyManua.ls Logo

Gree GMV-560WM/E-X - Page 81

Gree GMV-560WM/E-X
308 pages
Print Icon
To Next Page IconTo Next Page
To Next Page IconTo Next Page
To Previous Page IconTo Previous Page
To Previous Page IconTo Previous Page
Loading...
GREE GMV5E DC INVERTER VRF UNITS SERVICE MANUAL
77
Compressor Emergency Operation DIP Switch (SA3_COMP-E)
Remark
DIP1
DIP2
DIP3
DIP4
DIP5
0
1
0
0
0
Shielding the operation of 3# compressor
0
0
1
0
0
Shielding the operation of 4# compressor
0
0
0
1
0
Shielding the operation of 5# compressor
0
0
0
0
1
Shielding the operation of 6# compressor
Precautions:
A. When the DIP switch setting is not covered in the above scope, a DIP switch setting exception
fault may occur.
B. Only one compressor can be set to emergency mode on a module.
C. The compressor emergency operation mode is valid only in a single-module multi-compressor
system.
D. The default factory setting is 00000.
E. The system cannot continually run for more than 24 hours in compressor emergency operation
status. Once 24 hours are exceeded, the entire unit will be forcibly stopped and the limited
operation code Ad is displayed on the IDU.
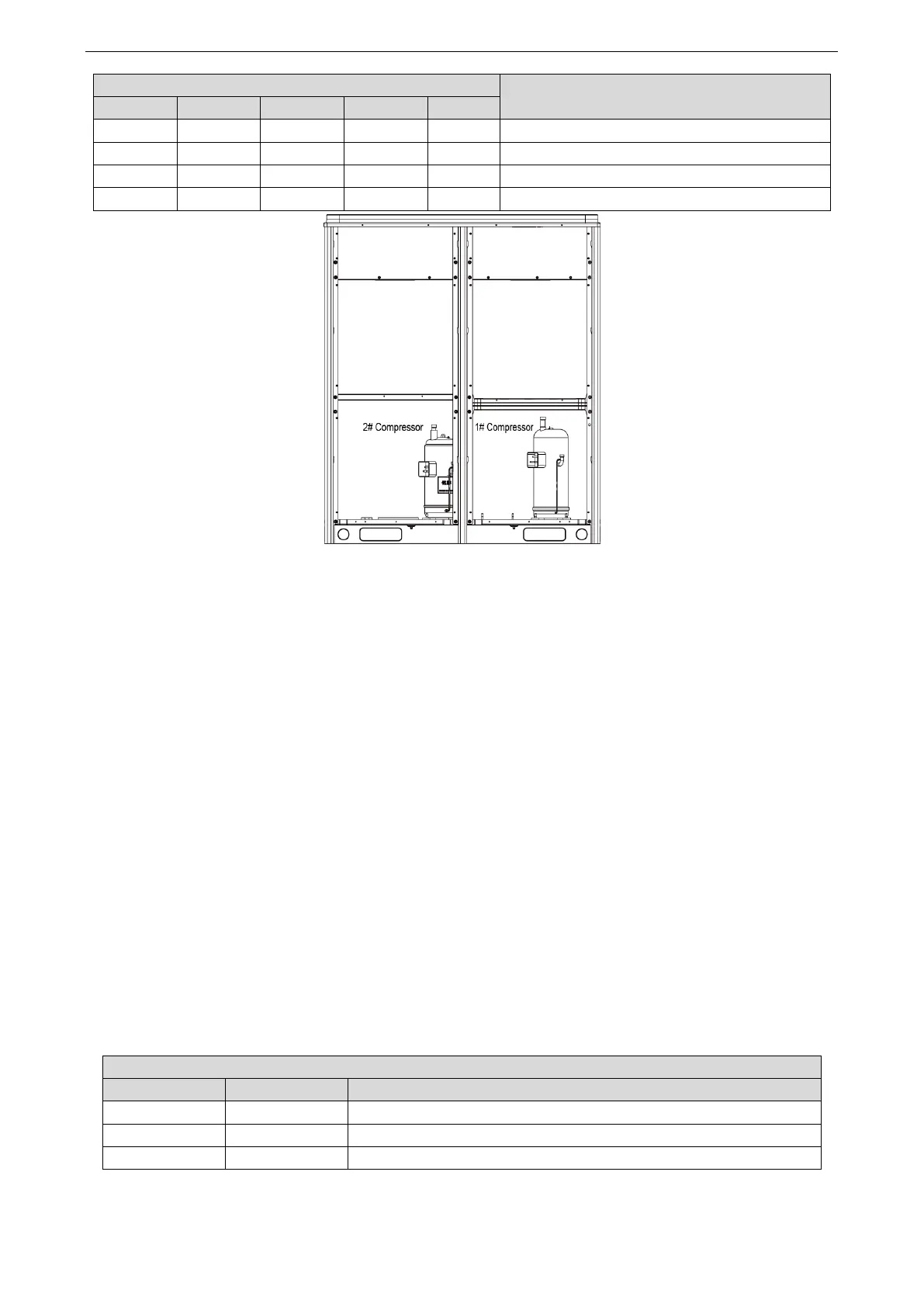
F. 1#-6# compressors are defined from right to left facing the front of the unit.
1# Compressor/Module Emergency Operation DIP Switch (SA4_I/M-E)
The 1# compressor/module emergency operation DIP switch (SA4_I/M-E) is used for aftersales
emergency settings when an exception occurs on the 1# compressor/module. It can shield the operation
of the abnormal compressor/module in a short time and guarantee the emergency operation of other
compressors.
When it is required to set the 1# compressor/module to emergency mode, set the DIP switch as
follows:
1# Compressor/Module Emergency Operation DIP Switch (SA4_I/M-E)
DIP1
DIP2
Remark
0
0
Not shielding the operation of 1# compressor/module
1
0
Shielding the operation of 1# compressor
0
1
Shielding the operation of the module

Table of Contents

Other manuals for Gree GMV-560WM/E-X

Related product manuals