EasyManua.ls Logo

Gree GMV-PD140W/NAB-K

Gree GMV-PD140W/NAB-K
30 pages
To Next Page IconTo Next Page
To Next Page IconTo Next Page
To Previous Page IconTo Previous Page
To Previous Page IconTo Previous Page
Loading...
Instruction of the GMV D.C. Inverter
5
3.2 Installation of Outdoor Unit
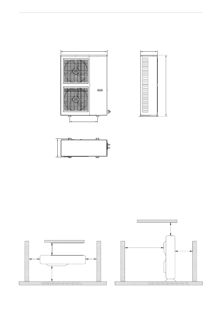
3.2.1 Outline Dimension of Outdoor Unit
Outline Dimension of GMV(L)-Pd100W/NaB-K,GMV(L)-Pd120W/NaB-K,GMV(L)-Pd140W/NaB-
K,GMV(L)-Pd160W/NaB-K.
950
572
1250
378
340
3.2.2 To handle the outdoor unit, you must use two ropes of sufficient length to lift on four
directions; To avoid displacement of unit center, the angle of the ropes must be kept lower than
40° during lift and movement. Below is the illustration for lifting of GMV-R300W2/Na-M
outdoor unit, similar for other outdoor unit series with outlet on top.
3.2.3 During installation, tighten the support and base of the unit by using M10screws.
3.2.4 Space dimension for installation of the unit is shown below.
GMV(L)-Pd100W/NaB-K,GMV(L)-Pd120W/NaB-K,GMV(L)-Pd140W/NaB-K,GMV(L)-Pd160W/
NaB-K Outdoor Unit Installation Space Dimension
500 500
500
5002000
1000
2000
3.2.5 Outdoor unit shall be installed on a concrete base 10cm high.

Other manuals for Gree GMV-PD140W/NAB-K

Related product manuals