EasyManua.ls Logo

Gree GRS-CQ10Pd/NhG-M - Wiring of the Remote Air Temperature Sensor

Gree GRS-CQ10Pd/NhG-M
135 pages
To Next Page IconTo Next Page
To Next Page IconTo Next Page
To Previous Page IconTo Previous Page
To Previous Page IconTo Previous Page
Loading...
Installation
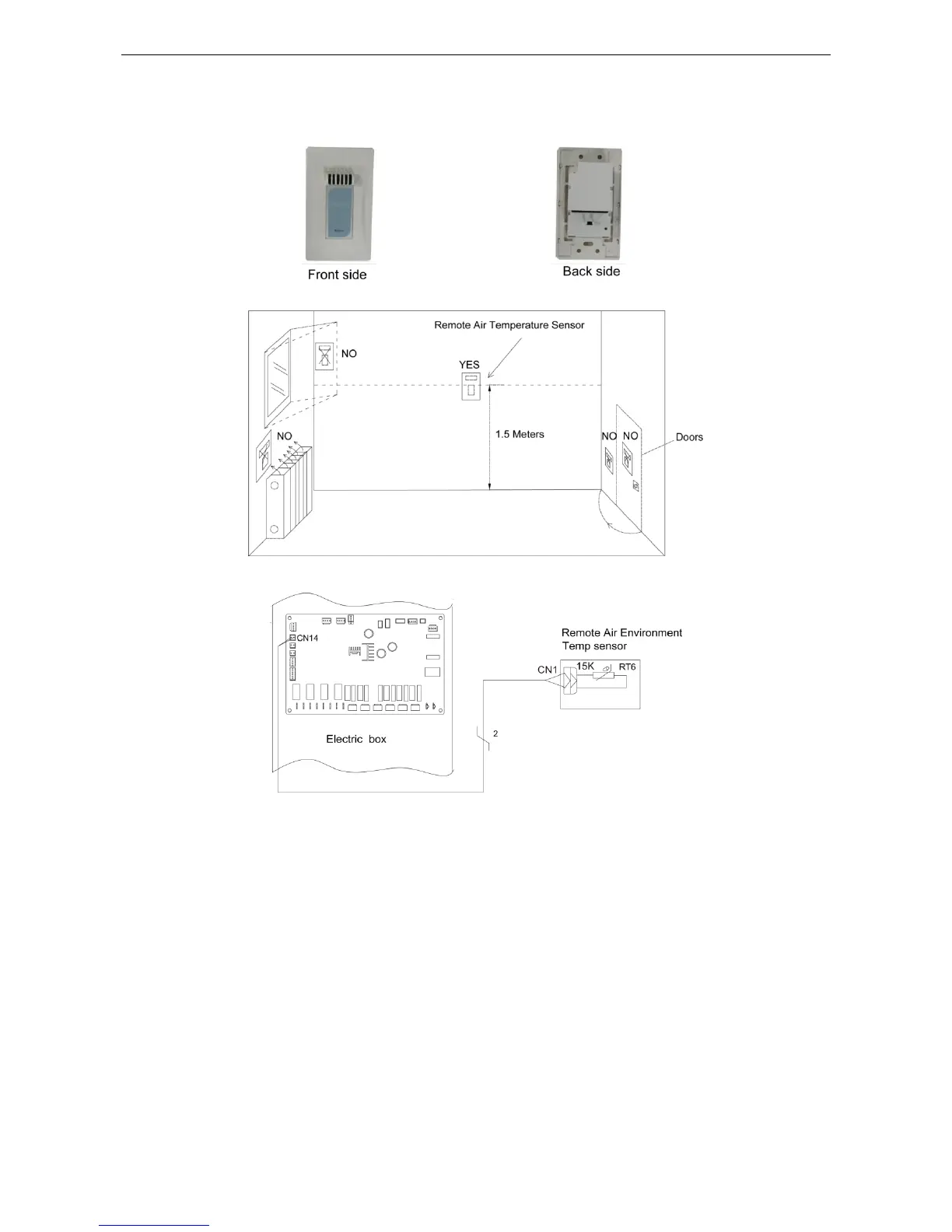
4.16 Wiring of the Remote Air Temperature Sensor
Notes:
Distance between the indoor unit and the remote air temperature sensor should be less than
15m due to length of the connection cable of remote air temperature sensor;
Height from floor is approximately 1.5m;
Remote air temperature sensor cannot be located where the area may be hidden when door is
open;
Remote air temperature sensor cannot be located where external thermal influence may be
applied;
Remote air temperature sensor should be installed where space heating is mainly applied;
After the remote air temperature sensor is installed, it should be set to ―With‖ through the wired
controller so as to set the remote air temperature to the control point.

Table of Contents

Other manuals for Gree GRS-CQ10Pd/NhG-M

Related product manuals