EasyManua.ls Logo

Haas VF-2 - Page 435

Haas VF-2
564 pages
Print Icon
To Next Page IconTo Next Page
To Next Page IconTo Next Page
To Previous Page IconTo Previous Page
To Previous Page IconTo Previous Page
Loading...
96-8000 435
OPTIONS
June 1999
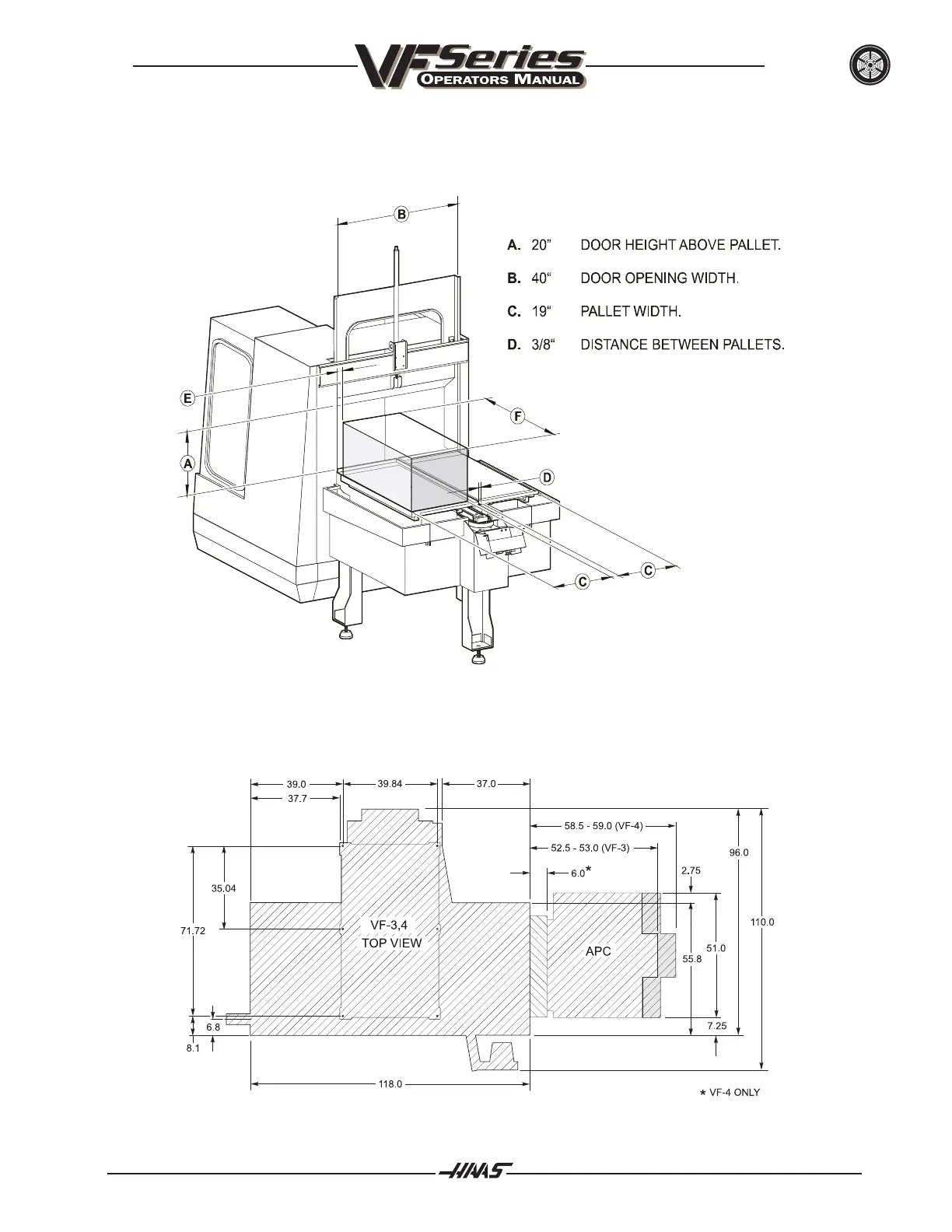
APC DIMENSIONS
VF 3/4 WITH APC FOOTPRINT

Table of Contents

Related product manuals