EasyManua.ls Logo

Hach 205 - Page 19

Hach 205
20 pages
Print Icon
To Next Page IconTo Next Page
To Next Page IconTo Next Page
To Previous Page IconTo Previous Page
To Previous Page IconTo Previous Page
Loading...
19
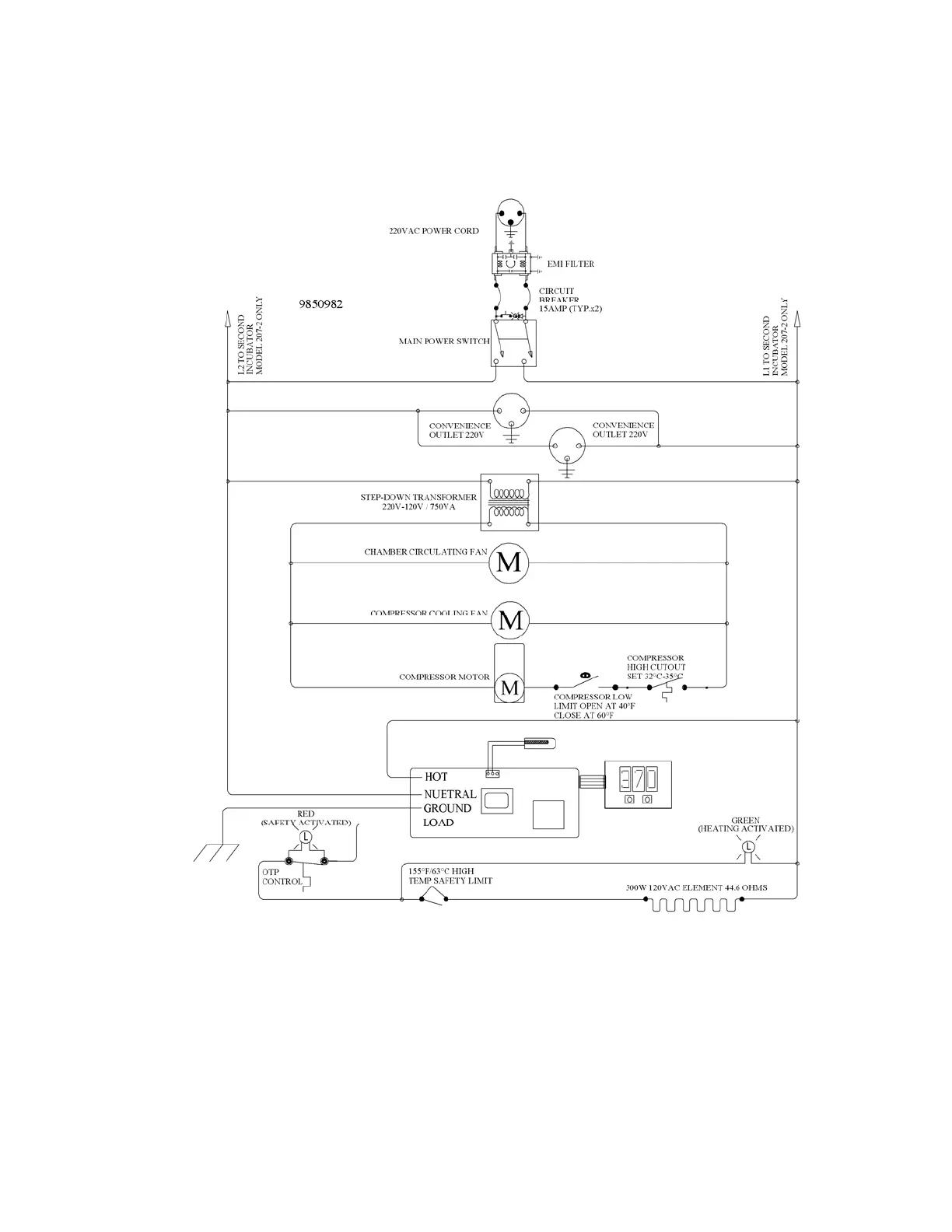
Wire Diagram
220 Volts

Related product manuals