EasyManua.ls Logo

Hakko Electronics 702B - Wiring

Hakko Electronics 702B
31 pages
Print Icon
To Next Page IconTo Next Page
To Next Page IconTo Next Page
To Previous Page IconTo Previous Page
To Previous Page IconTo Previous Page
Loading...
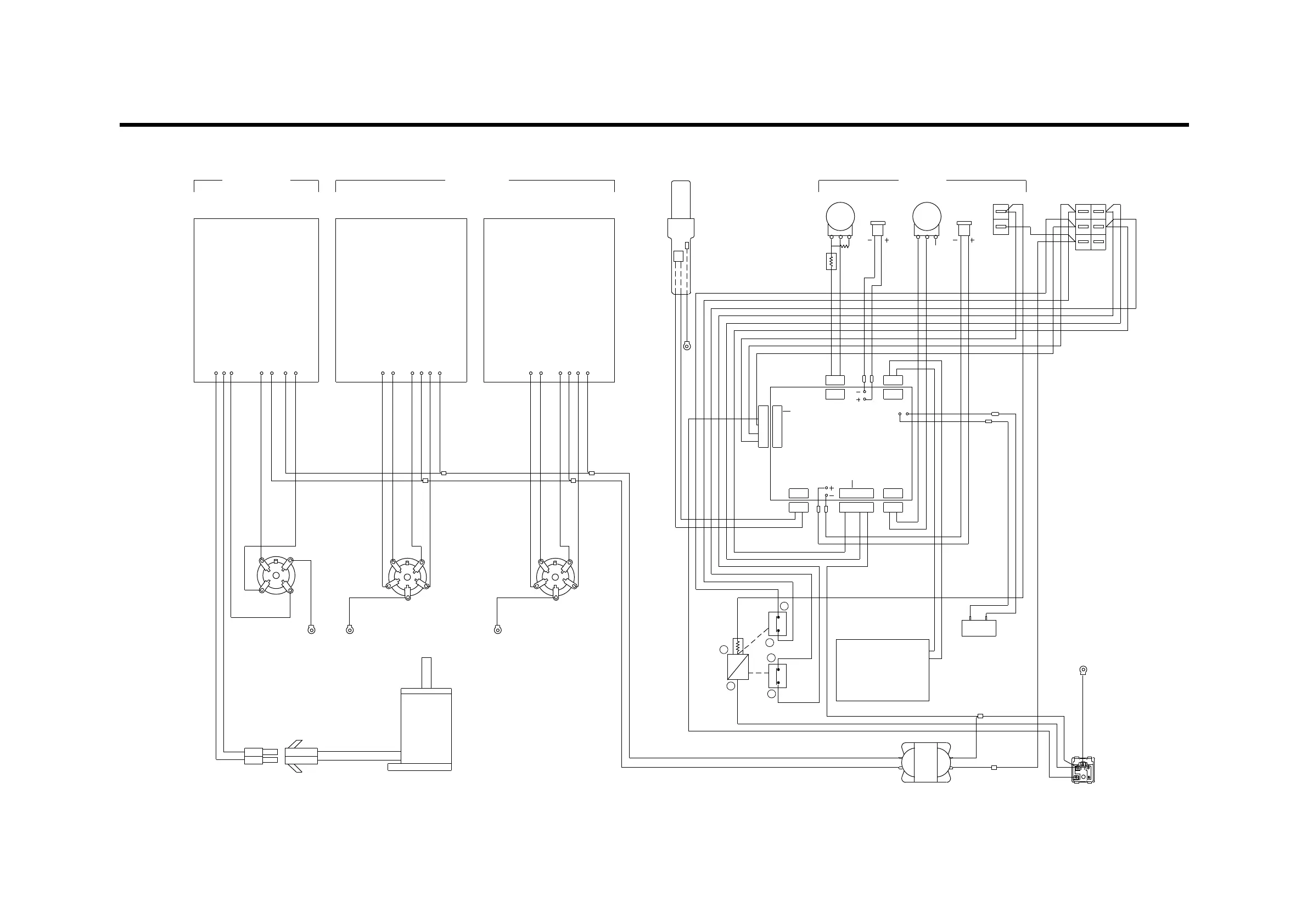
Wiring
30 31
Wiring
DESOLDERING
SOLDERING
A.IRON
B.IRON
PWB
PWB
PWB
MOTOR
1
2
1
2
RECEPTACLE
1
2
3
4
RECEPTACLE
1
2
3
4
5
RECEPTACLE
1
2
3
4
5
PWB
4321
4321
41
41
21
21
13
13
14
14
NC
NC
5
4
3
2
1
5
4
3
2
1
PUMP
TRANSFORMER
CEMENT RESISTOR
REWORK
AIR
VR
AIR
LED
HEATER
VR
HEATER
LED
SWITCH
POWER SWITCH
2
1
3
5
4
6
1
2
PRIMARY
SECONDARY
NC
NC
POWER RECEPTACLE
M2 M1 TH1 TH2TR
H2 TRANS TRANS H1 H4 TRANS TRANSH3
TH1 TH2
H4 TRANS TRANSH3
13
14
12
4
1
9

Related product manuals