EasyManua.ls Logo

HANKISON HPRP 125 - Wiring Diagram: Models 100, 125, 150

Default Icon
20 pages
Print Icon
To Next Page IconTo Next Page
To Next Page IconTo Next Page
To Previous Page IconTo Previous Page
To Previous Page IconTo Previous Page
Loading...
11
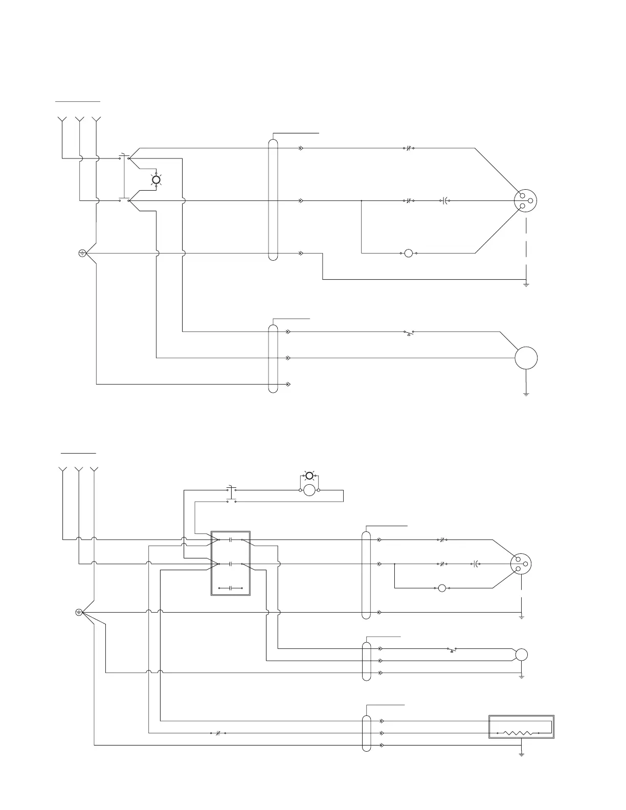
WIRING DIAGRAM
Models 100, 125 & 150
Model 100 - 120/230 VAC
Models 125/150 - 120/230 VAC
COMPRESSOR HARNESS
PE
T2
T1
FAN 1 HARNESS
IO
PE
GROUND
STUD
L2
L1
L2
230 VAC
CUSTOMER SUPPLIED
L1 PE
PILOT LIGHT
POWER ON
T2
T2
T2
T1
T1
A
PE
T2
T1
T1
FPS 1
FAN 1
MTR2
START RELAY
SR
SR
L3
L3
M
6
5
S
CAPACITOR
4
OVERLOAD
31
3
MTR1
COMPRESSOR
R
C
S
POWER CORD SUPPLIED
120 VAC
PILOT LIGHT
COMPRESSOR CONTACTOR
POWER ON
CONT 1
PE
-2NC
PE
L1
CONT 1
-1NC
6
L2
GROUND STUD
L2
L1
PE
230 VAC
CUSTOMER SUPPLIED
L1 L2
L2
L2
L3
L2
L1
L2
L1
L1
L1
T3
T2
T2
T2
T1
T1
T1
CONT 1
O
L1
N
4
I
55
A1
A
PE
6
FAN 1 HARNESS
HEATER HARNESS
PE
L2
T2
T1
FPS 1
H1
H2
HEATER 1
MTR2
FAN 1
COMPRESSOR HARNESS
PE
T2
T1
SR
L3
L3
SR
M
S
2
OVERLOAD
31
A2
4
C
3
1
R
COMPRESSOR
S
MTR1
120 VAC
POWER CORD SUPPLIED

Related product manuals