EasyManua.ls Logo

HELI CPCD140 - Page 37

HELI CPCD140
61 pages
Print Icon
To Next Page IconTo Next Page
To Next Page IconTo Next Page
To Previous Page IconTo Previous Page
To Previous Page IconTo Previous Page
Loading...
36
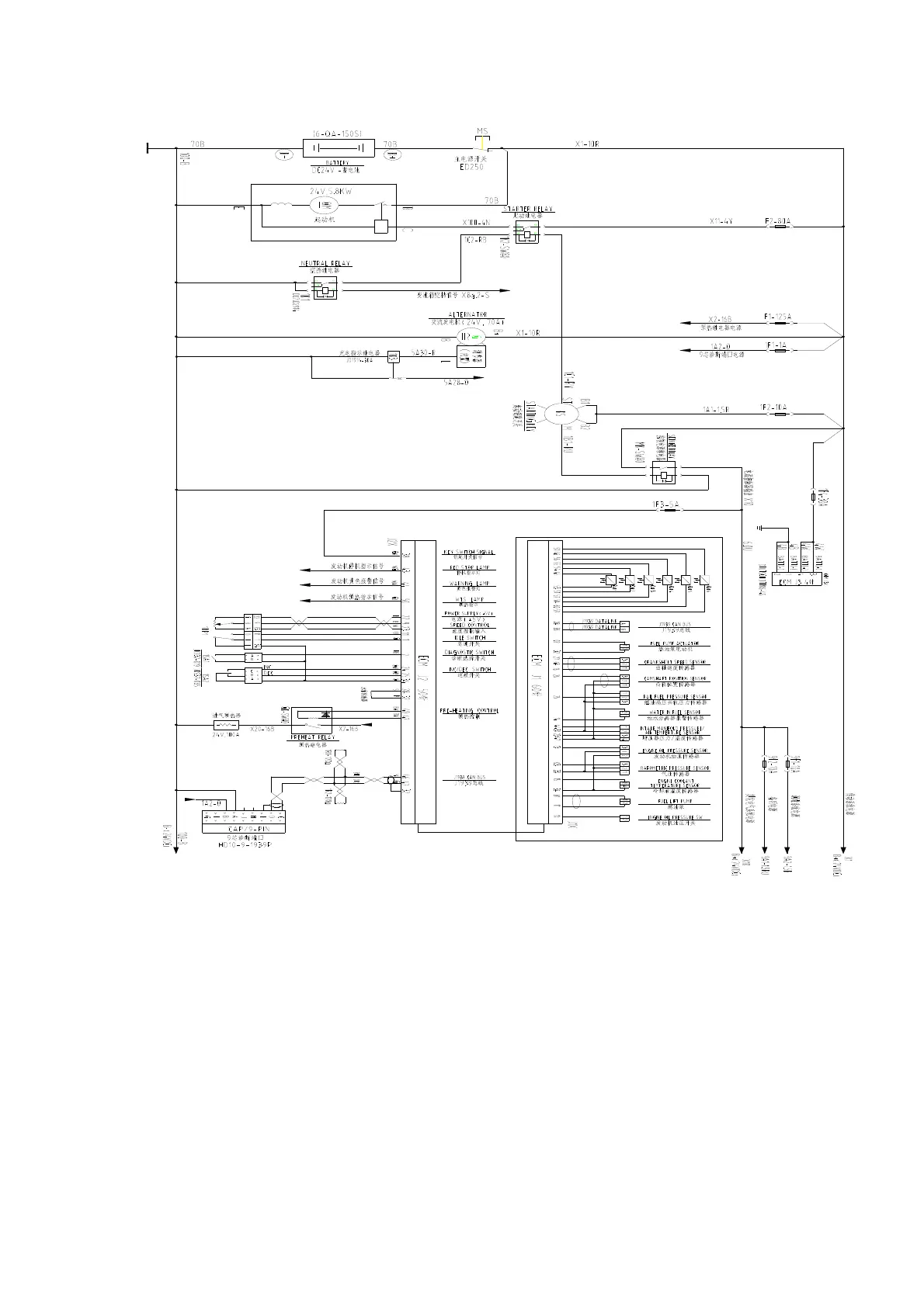
Fig.7-2.2 Electric Principle Drawing(CPCD140-160-CU3,CU4)
(5) Instruments
It mainly consists of hour meter, fuel meter, water temperature meter, voltage
meter, tacho meter, oil temperature meter, oil pressure meter, brake pressure meter and
charging indicator, oil pressure indicator, left turning indicator, right turning indicator,
brake indicator, parking indicator. Alarm lamp of braking oil pressure low,
manual/autometic alternative indicator etc. They are all achieve checking instruments

Related product manuals