EasyManua.ls Logo

HELI JS07N - Page 57

HELI JS07N
63 pages
Print Icon
To Next Page IconTo Next Page
To Next Page IconTo Next Page
To Previous Page IconTo Previous Page
To Previous Page IconTo Previous Page
Loading...
JS07N·JS07·JS08·JS12·JS14
55
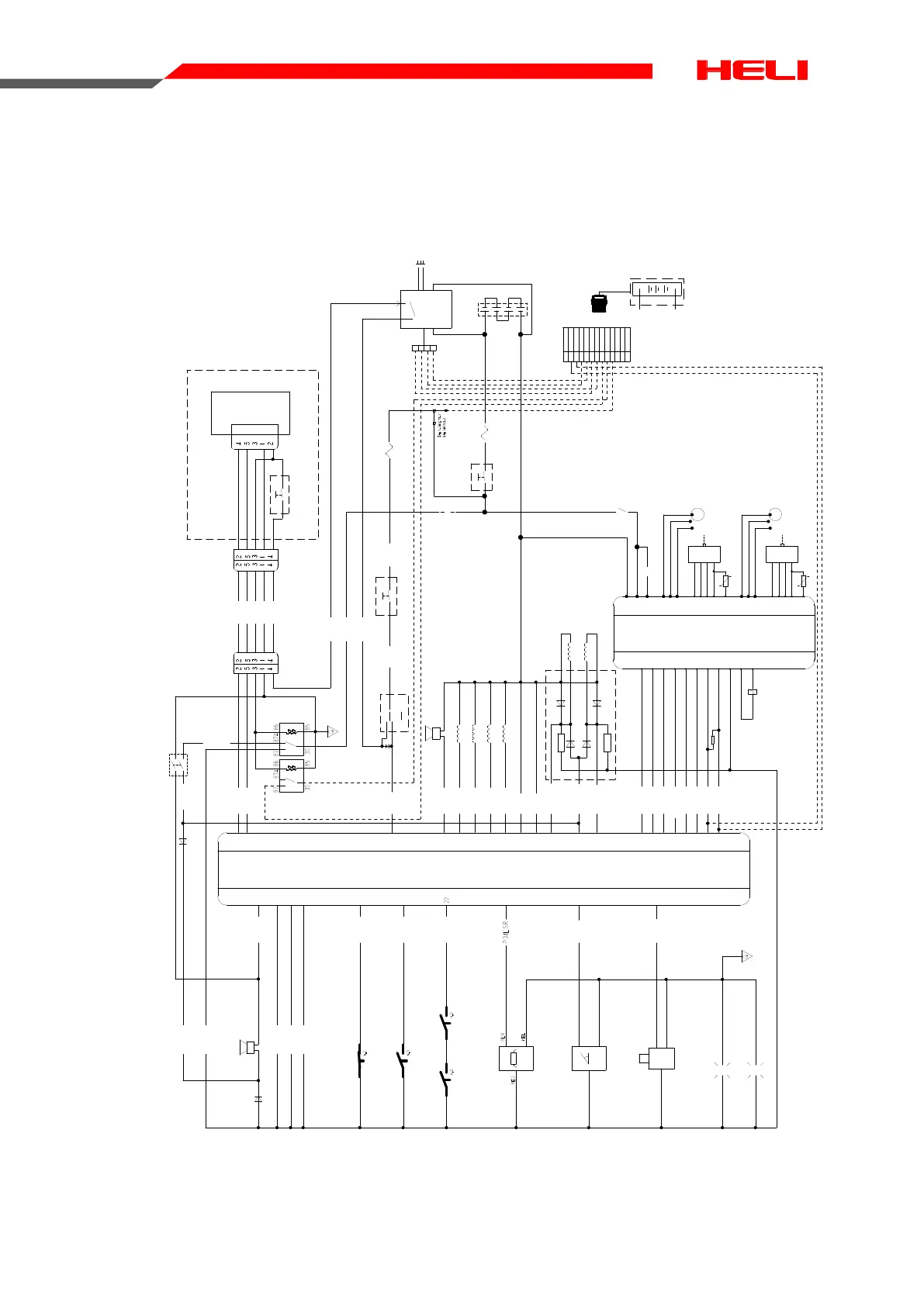
Electrical Schematic Diagram
JS0607E,JS0607ELi,JS0607WE,JS0607WELi,JS0808E,JS0808ELi,JS0612E,
JS0612ELi,JS0812E,JS0812ELi,JS1012E,JS1012ELi,JS1212E,JS1212ELi
CB2 断路
7A
CIRCUIT
BREAKER
P2 急停开关
EMERGENCY STOP
上部控制箱
P6PRC
P18PLC
P30SRC
GND
N/C WHEN NOT
CHARGING
U9 充电器
BATTERY
CHARGER
+ -
B5 电池
4-6V
BATTERY
P20HR
平台上升/PLATEFORM RAISE VALVE
平台下降/PLATEFORM LOWER VALVE
左转阀/STEER LEFT VALVE
右转阀/STEER/STEER RIGHTRIGHT VALVEVALVE
插头
CHARGE
220AC
F1
300A
FUSE
Y5
Y3
Y2
Y1
6
18
19
30
15
14
24
13
23
35
4
5
25
34
U 5U 5
ECUECU
E500E500
PATFORM CONTROLLER
PLATFORM
PCBA
P1 急停开关
EMERGENCY STOP
S7 倾角开
LEVEL SENSOR
P14PM
P19SLC
P24DL-
P13DL+
PWRV+
PWRV+
PWRV+
PWRV+
C1DL-
B1DL+
PWRR
GND
ESTP
保险丝
H2 蜂鸣
ALARM
BAT2+BAT2+
ESTP
H1
-
+
喇叭/HORN/HORN
FB1
FB2
0V表示升
坑洞保护限位开关
POTHOLEPOTHOLE GUARDGUARD SWSW
0V表示收
24V表示升起
16
S14 叉架角度传感
SCISSOR ANGLE SENSOR
26
L S 3L S 3
L S 4L S 4
P16SA
P26CP
P35BLS
P22PLS
PT15 力传感器
PRESSURE SENSOR
LS2LS2 限位开关
BOTTOMBOTTOM LIMITLIMIT SWSW
0V表示在最高点
P23TLS
LS1LS1 限位开关
TOPTOP LIMITLIMIT SWSW
21
P21AO
-
+
20
PLS
P33RBS
33
P32BRK
32
P10LBS
10
2K
2K
右刹车线/RH BRAKE
左刹车线/LH BRAKE
5
8
6
10
2
1
4
7
9
U10
K1
继电器
RELAY
S1
紧急解刹开关
BRAKE RELEASE SWITCH
ALARM+ P32BRK
PWRBK
KS1 匙开关
KEY SWITCH
ESTP1
ESTP2
PWRK1PWRK1
M2
Motor Temp Sensor
PostionP ostion
SensorSensor
GND 5V A B
U1
V1
W1
行走马达
motor
M3
泵电机
PUMP MOTOR
K2
7
29
8
31
F2T
PUMP
B-
11
10
26
7
21
W2
V2
U2
B+
M1
Motor Temp Sensor
PostionP ostion
SensorSensor
GND 5V A B
U1
V1
W1
行走马达
motor
32
31
26
7
8
W1
V1
U1
13
6
MAIN CONTRACT
P29DRC
P7DFC
P8PRE
9
22
14
33
P31DE
1
23
CANH
35
CANL
9
27
P9PRS
P27DS
28
16
2-4
2-5
K2
GND
17
D3
D2
D4
D1
1
3
4
B
2
P0
急停
e-stop
B5A 锂电池
24V
BATTERY
1 2 01 2 0Ω
10A10
1
2
3
4 C A N LC A N L
C A N HC A N H
G N DG N D
1 2 V1 2 V
A
B
C
D
E
F
G
H
J
K
L
M
VCAN_LVCAN_L
VCAN_HVCAN_H
A+A+
CCAN_LCCAN_L
CCAN_HCCAN_H
A-A-
X
X
X
BMS24V +(常电)BMS24V+(常电)
24V+(常电 )24V+(常电)
24V+( IN)2 4V+( IN)
保险丝
F 2F 2
3 A3 A
FUSEFUSE
K 2K 2
继电器
RELAYRELAY
24V+(IN)24V+(IN)
24V+(24V+()
PWRK2PWRK2
铅酸
B A T 1 +B A T 1 +
锂电