EasyManua.ls Logo

HELIX Compressor 9600 - Multiple Cryo-Torr Cryopump Connections; Helium Line Connections; Figure 3-7: Alternative Multiple On-Board Cryopump or Waterpump Installation

HELIX Compressor 9600
59 pages
Print Icon
To Next Page IconTo Next Page
To Next Page IconTo Next Page
To Previous Page IconTo Previous Page
To Previous Page IconTo Previous Page
Loading...
9600 Compressor Installation, Operation, and Maintenance
P/N 8040540 3-13
C
HELIX TECHNOLOGY CORPORATION
-
TI C
RY
OG
EN
ICS
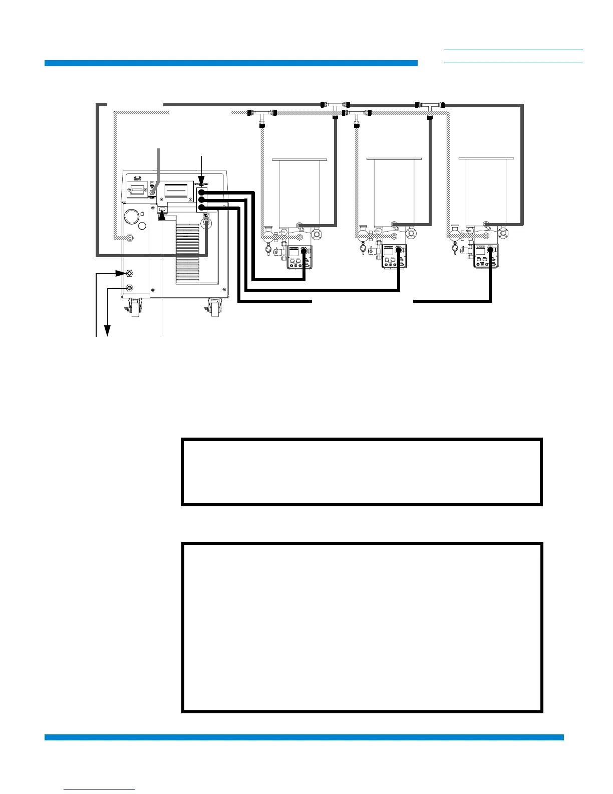
Figure 3-7: Alternative Multiple On-Board Cryopump or Waterpump Installation
(Splitter Box located at Compressor)
Multiple Cryo-Torr Cryopump Connections
CAUTION
Make sure the Compressor power is OFF before making any
connections to the rear panel.
Helium Line Connections
CAUTION
The use of several compressors on a single manifold feeding a common
supply header and a common return header requires special
precautions. Contact CTI-CRYOGENICS for a review of the intended
installation and for specific technical instructions.
The use of a 9600 compressor on a manifold with other
CTI-CRYOGENICS compressor models requires a reduction of the
helium charge pressure to 200 - 210 psig charge pressure to avoid
helium safety valves from inadvertently venting. Refer to Section 4 -
Operation and Section 5 - Maintenance for more information.
HELIUM SUPPLY
HELIUM RETURN
WATER
POWER
ON-BOARD POWER CABLES
REMOTE
ON-BOARD
SPLITTER
BOX

Table of Contents