EasyManua.ls Logo

HELIX Compressor 9600 - Appendix B - Flow Diagram

HELIX Compressor 9600
59 pages
Print Icon
To Next Page IconTo Next Page
To Next Page IconTo Next Page
To Previous Page IconTo Previous Page
To Previous Page IconTo Previous Page
Loading...
9600 Compressor Installation, Operation, and Maintenance
P/N 8040540 B-1
C
HELIX TECHNOLOGY CORPORATION
-
TI C
RY
OG
EN
ICS
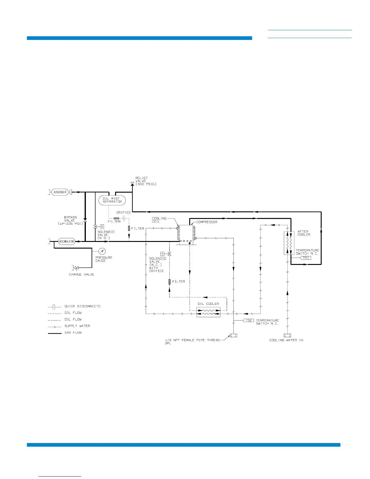
Appendix B - Flow Diagram
Figure B-1:9600 Compressor Flow Diagram

Table of Contents