EasyManua.ls Logo

heute wohnen HWC-E32 - Nivel de Protección del Agua

heute wohnen HWC-E32
Print Icon
To Next Page IconTo Next Page
To Next Page IconTo Next Page
To Previous Page IconTo Previous Page
To Previous Page IconTo Previous Page
Loading...
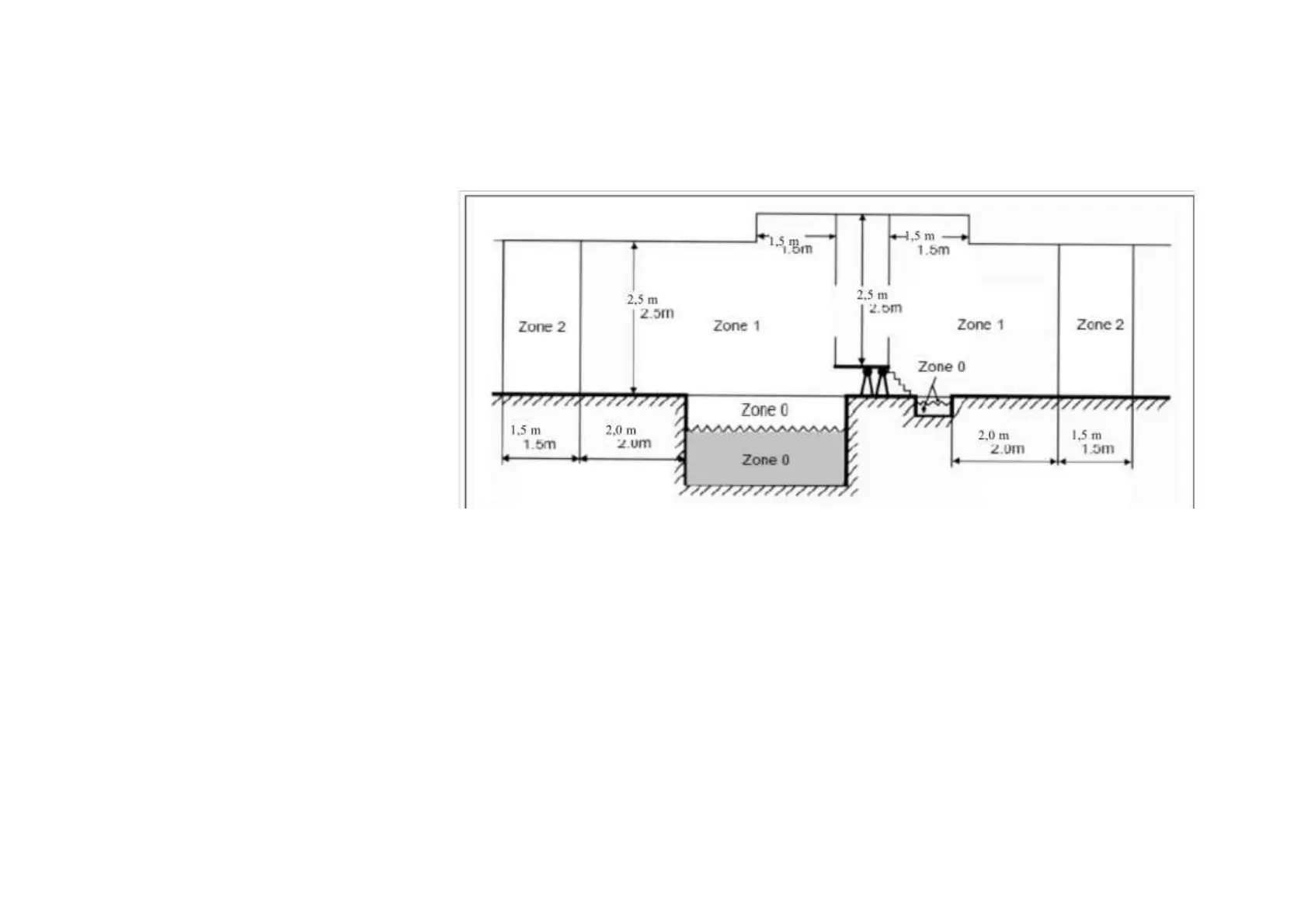
7. NIVEL DE PROTECCIÓN DEL AGUA
Advertencia: los niveles de protección del agua del aparato dependen de las zonas del producto. Consulte el esquema siguiente:
Zone 1
Nota: las dimensiones de las zonas medidas
están limitadas por las paredes y las partes fi-
jas. En la figura anterior se muestran las dimen- si-
ones de las zonas de piscinas fijas y de relleno.
SEGURIDAD Y ANUNCIOS
1. Un enlace equipotencial suplementario local debe conectar todas las partes conductoras externas de las Zonas 0, 1 y 2 con conductores pro-
tectores de todos los componentes conductores situados en estas zonas.
2. No se permiten las medidas de protección por ubicación no conductora y por enlace equipotencial sin toma de tierra.
3. El equipo eléctrico debe tener al menos los siguientes grados de protección:
4. Las cajas de unión no se deben instalar en las Zonas 0 y 1, excepto en la Zona 1 donde se permita para circuitos SELV.
En la Zona 0: IPX8
En la Zona 1: IPX5
5. En las Zonas 0 y 1 no se deben conectar dispositivos de distribución ni accesorios.
6. El transformador se debe colocar fuera de la Zona 1
Seite 20/22 17.12.20

Table of Contents