EasyManua.ls Logo

heute wohnen HWC-E32 - Niveau de Protection Par Rapport à Leau

heute wohnen HWC-E32
Print Icon
To Next Page IconTo Next Page
To Next Page IconTo Next Page
To Previous Page IconTo Previous Page
To Previous Page IconTo Previous Page
Loading...
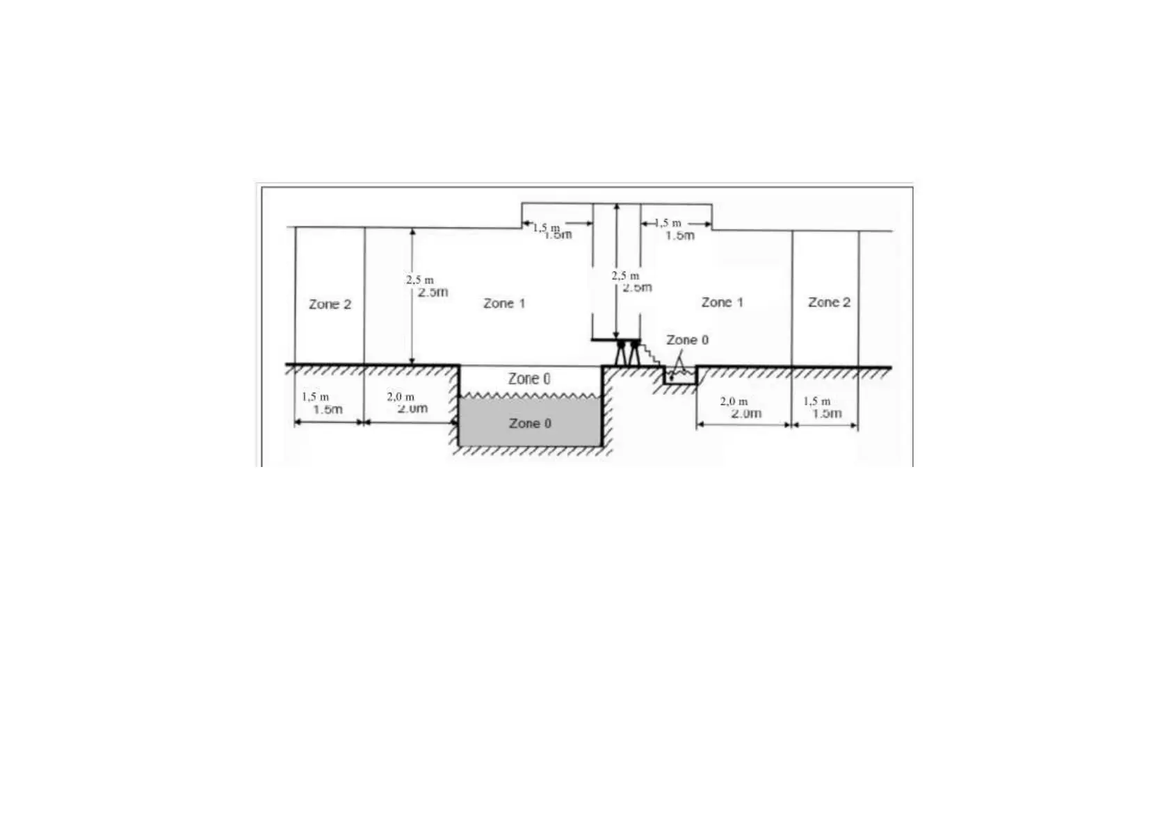
7. NIVEAU DE PROTECTION PAR RAPPORT À L'EAU
Mise en garde : Les niveaux de protection par rapport à l'eau de l'appareil diffèrent selon les zones dans lesquelles se
trouve le produit. Voir le schéma suivant
Remarque : Les
dimensions de la zone
mesurée sont limitées
par les murs et les
cloisons fixes. Figure
ci-dessus—Dimensions
des zones pour les
piscines et les bassins
SÉCURITÉ ET DÉCLARATIONS
1. Une liaison équipotentielle supplémentaire locale doit relier tous les éléments conducteurs externes dans les Zones 0, 1
et 2 avec des conducteurs de protection de tous les éléments conducteurs exposés se trouvant dans ces zones.
2. Les mesures de protection par un emplacement non conducteur et par une liaison équipotent sans connexion à la masse
ne sont pas autorisées.
3. L'équipement électrique doit disposer au moins des degrés de protection suivants :
4. Les boîtes de dérivation en doivent pas être installées dans les Zones 0 et 1, sauf, dans la zone 1, avec des circuits à très
basse tension de sécurité.
5. Dans la Zone 0 : IPX8
6. Dans la Zone 1 : IPX5
7. Dans les Zones 0 et 1, aucun organe ni accessoire de couplage ne doit être installé.
8. Le transformateur doit être situé en-dehors de la zone 1.
Seite 20/22 17.12.20

Table of Contents