EasyManua.ls Logo

heute wohnen HWC-E32 - Livelli DI Protezione Dellacqua

heute wohnen HWC-E32
Print Icon
To Next Page IconTo Next Page
To Next Page IconTo Next Page
To Previous Page IconTo Previous Page
To Previous Page IconTo Previous Page
Loading...
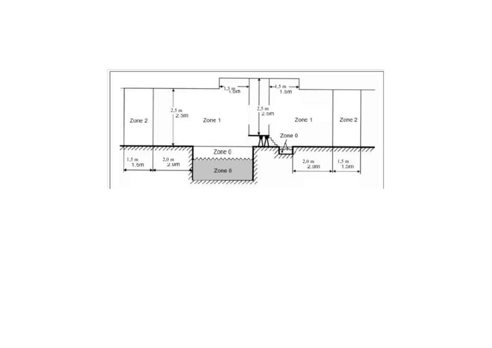
7.Livelli di protezione dell‘acqua
Avvertenza: I livelli di protezione dall’acqua variano a seconda delle diverse zone. Vedi illustrazione qui sotto:
Zona 1
Nota: Le dimensioni
della zona sono limitate
da pareti e divisori
fissi.
Le dimensioni delle
varie zone sono
indicate nella figura.
Importati informazioni sulla sicurezza
1.
Tutte le parti conduttive esterne nelle zone 0,1 e 2 necessitano di un collegamento aggiuntivo. La messa a terra deve essere utilizzata per tutte le
parti conduttive aperte all’interno di queste zone.
2.Non sono consentite misure di protezione senza messa a terra.
3.I dispositivi elettrici devono corrispondere almeno alle seguenti classi di protezione:
4.Le scatole di distribuzione non devono essere installate nelle zone 0 e 1. Eccezione nella zona 1: approvazione SELV.
Nella zona 0: IPX 8
Nella zona 1: IPX 5
5.Nessun dispositivo audio o altri accessori possono essere installati nelle zone 0 e 1.
6.
I trasformatori devono essere posizionati al di fuori della zona 1.
Seite 21/23 17.12.20

Table of Contents