EasyManua.ls Logo

Higen FDA7004B - Page 30

Default Icon
147 pages
Print Icon
To Next Page IconTo Next Page
To Next Page IconTo Next Page
To Previous Page IconTo Previous Page
To Previous Page IconTo Previous Page
Loading...
2. Wiring and connection
2-17
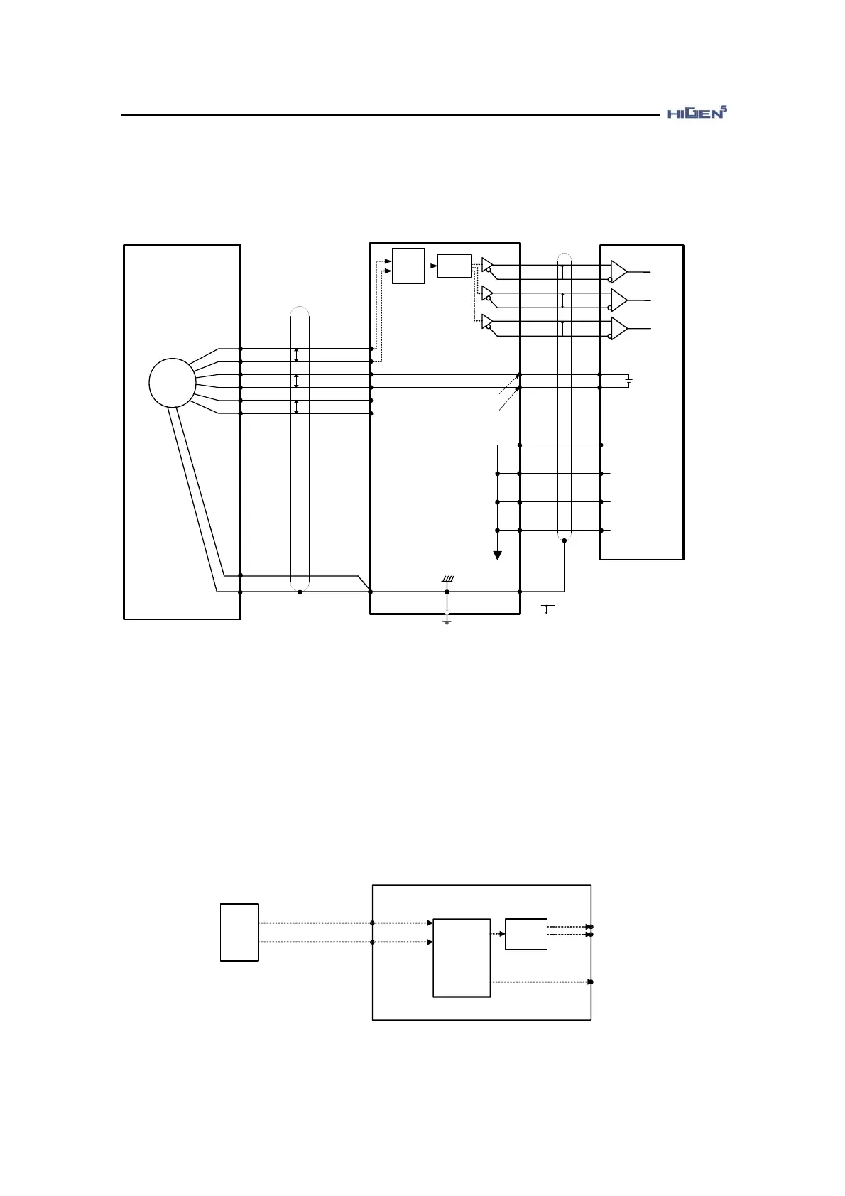
A wiring example of CN2 of motor side (60,80) and FDA7000(A) when applying the 17bit
absolute/incremental encoder
2-12
EN
2
P
P
P
2-1
2-2
2-7
2-8
2-19
2-9
SD
/SD
BAT+
BAT-
Vcc(5V)
GND(0V)
CN2 CN1
HOST CONTROLLER
1-7
1-32
1-6
1-31
1-5
1-30
AC SERVO DRIVER (FDA7000A)
1-1
1-8
1-33
1-34
0V
PA0
/PA0
PB0
/PB0
PZ0
/PZ0
P
P
P
Used LINE RECEIVER
T.I SN75175
Output LINE DRIVER
T.I SN75174
[*1]
[*1]
[*2]
1-50
[*1] indicates the TWIST PAIR Line.
P
[*2] T.I : TEXAS INSTRUMENT Inc.
1
Division
circuit
Serial
Data
=>
Pulse
Conv.
3
4
5
6
7
+
-
FG
1-29
1-4
AC SERVO MOTOR
(□60,80)
8
Applied cable specification: AWG24 x 9Pair TWIST, SHIELD CABLE (Maximum length 20m)
You do not need to connect the incremental 17bit encoder no. 7 (BT+) and no. 8 (BT-)
terminals,
2.4.4 17bit absolute encoder data transmission
The output signal of absolute encoder is the incremental division output PAO, /PAO, PBO,
PBO, PZO, /PZO
.
EN
SD
/SD
SERVO DRIVE
Serial Data
->
Pulse Conv.
Division
circuit
(P01-14)
PAO
PBO
PZO

Other manuals for Higen FDA7004B

Related product manuals