EasyManua.ls Logo

Higen FDA7010 - Page 194

Default Icon
214 pages
Print Icon
To Next Page IconTo Next Page
To Next Page IconTo Next Page
To Previous Page IconTo Previous Page
To Previous Page IconTo Previous Page
Loading...
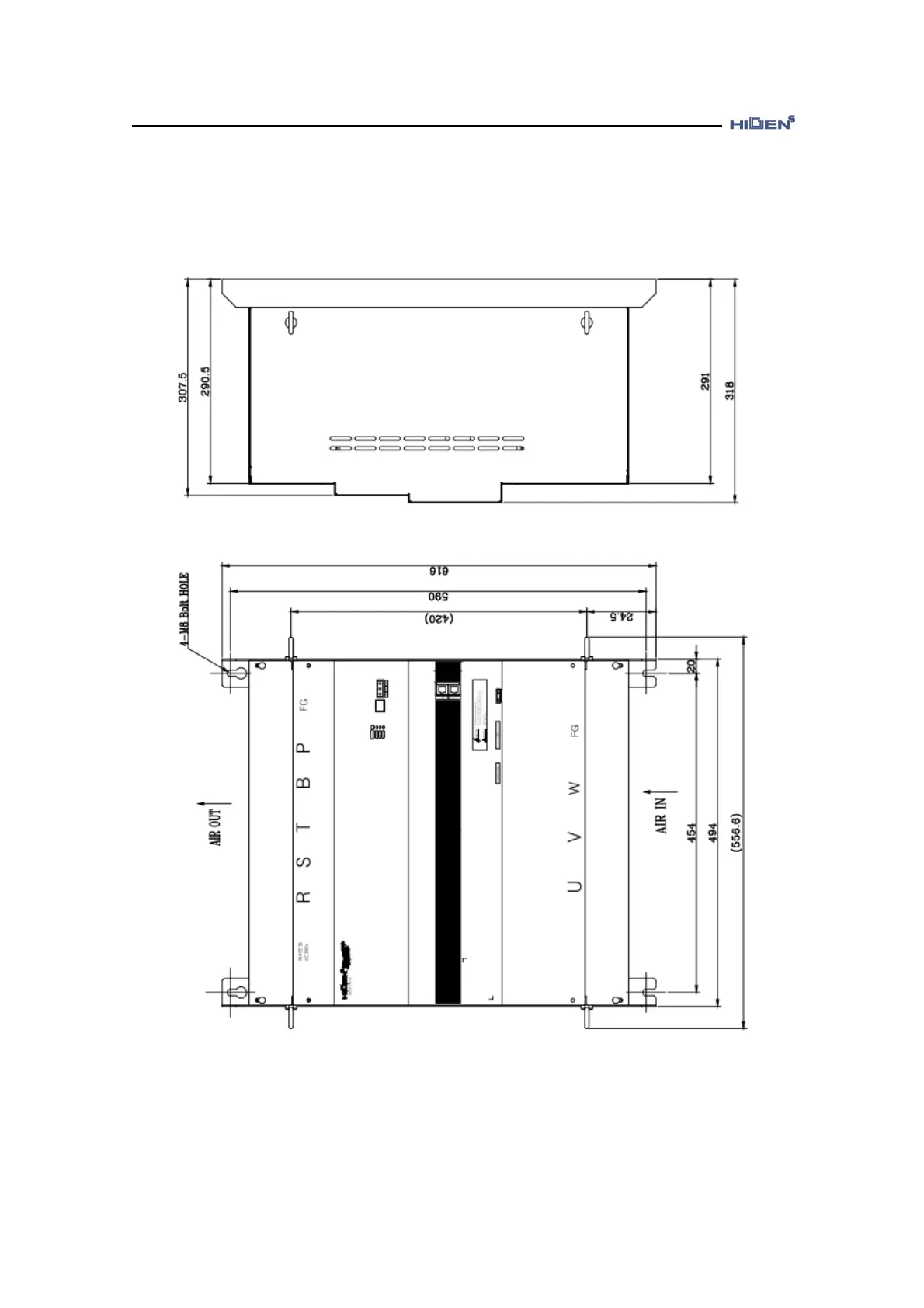
8. External view
8-8
[External view M ]

Table of Contents

Other manuals for Higen FDA7010

Related product manuals