EasyManua.ls Logo

Hitachi DV-PF7E - Page 117

Hitachi DV-PF7E
123 pages
Print Icon
To Next Page IconTo Next Page
To Next Page IconTo Next Page
To Previous Page IconTo Previous Page
To Previous Page IconTo Previous Page
Loading...
B-3
REC
AMP
100
3
AUTO
BIAS
2
1
+5V
+5V
Q404
Q406
BIAS
OSC
Q403
N-A-PB
TO Hi-Fi AUDIO
BLOCK DIGRAM
N-A-REC
Q401
(PB=ON)
Q405
SWITCHING
D-REC-OFF
5
EQ
AMP
98
7
LINE
AMP
REC-ON
AUDIO HD-SW
CONTROL
MUTE
11
6
PB-ON
SP/LP-ON
P
TUNER IN2
IN1
R
ALC
DET
ALC
IC301
(AUDIO SIGNAL PROCESS)
1513 17
4 A-PB/REC
CN504
3 A-COM
1 AE-H
2 AE-H/FE-H
A-PB/REC 4
A-COM 3
AE-H 1
AE-H/FE-H 2
CL287
AUDIO
HEAD
AUDIO
ERASE
HEAD
ACE HEAD ASSEMBLY
FE HEAD
2 FE-H
1 FE-H-GND
CN501
MAIN CBA
PB-AUDIO SIGNAL REC-AUDIO SIGNAL Mode : SP/REC
71
A-MUTE-H
IIC-BUS SCL
IIC-BUS SDA
TO SERVO/SYSTEM
CONTROL BLOCK
DIAGRAM
FULL
ERASE
HEAD
68 69
SERIAL
DECODER
(DECK ASSEMBLY)
12
16
INV
AT T
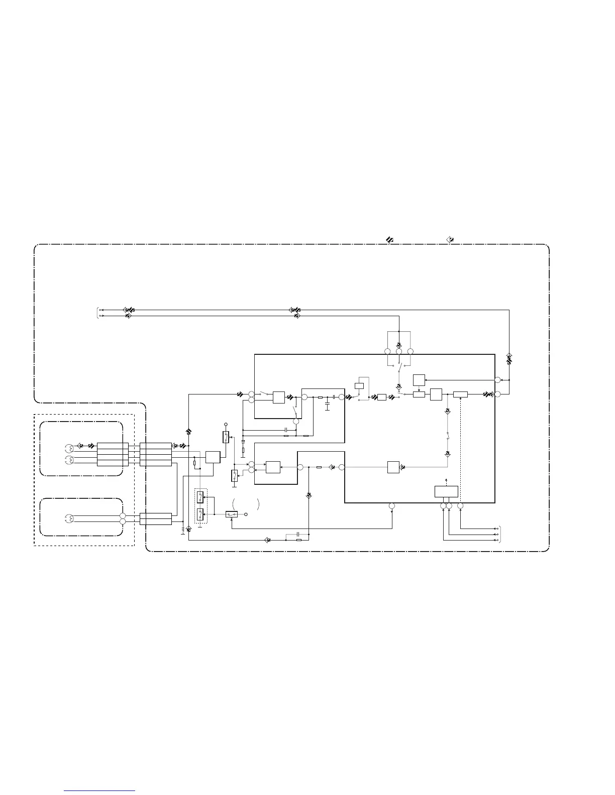
B-3 Audio Block Diagram

Table of Contents

Related product manuals