EasyManua.ls Logo

Hitachi SJ300 Series

Hitachi SJ300 Series
294 pages
To Next Page IconTo Next Page
To Next Page IconTo Next Page
To Previous Page IconTo Previous Page
To Previous Page IconTo Previous Page
Loading...
SJ300 Inverter
Inverter Mounting
and Installation
2–9
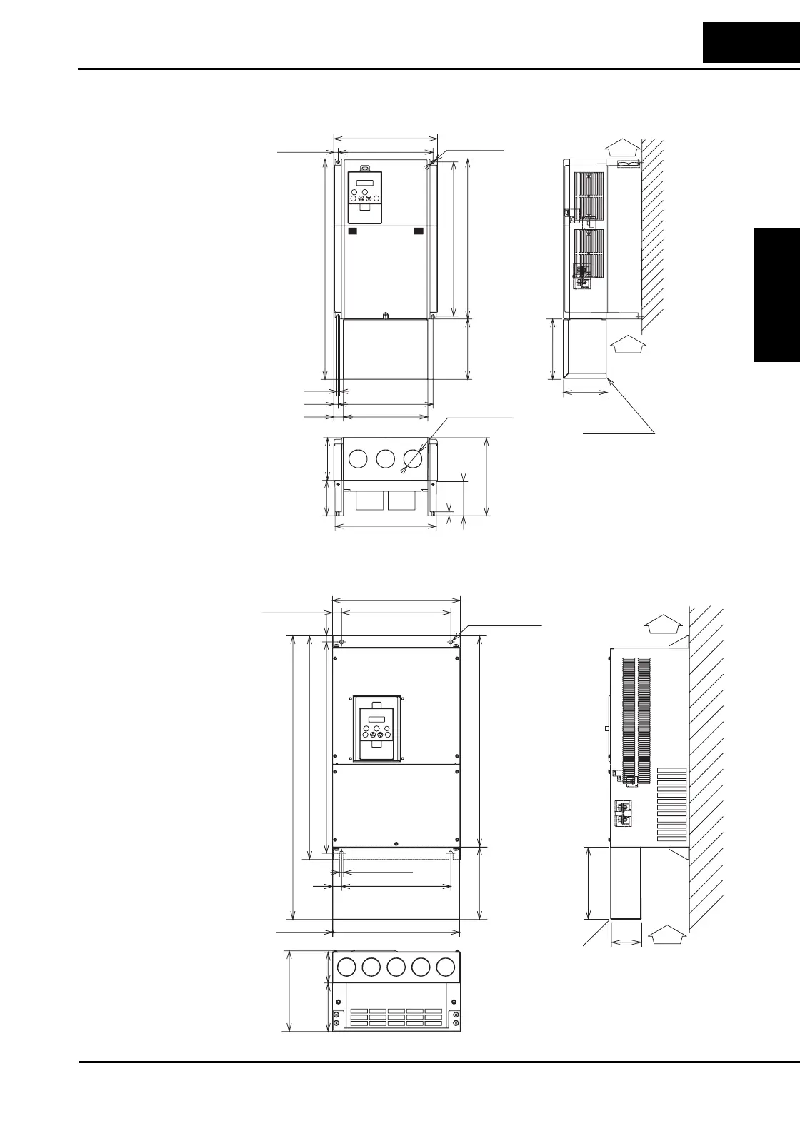
Dimensional drawings, continued...
Model
SJ300
-300LFU/HFE, HFU
310(12.20)
265(10.43)
2 - φ 10(0.39)
510(20.08)
540(21.26)
510(20.08)
685(26.97)
2 - 10(0.39)
265(10.43)
307(12.09)
74(2.91)
15
(0.59)
22.5
(0.89)
22.5(0.89)
175(6.89)
1.5(0.06)
195(7.68)
117
(4.61)
74
(2.91)
Optional adapter
for NEMA 1 rating
Air intake
Exhaust
175(6.89)
Model
SJ300
-150LFU/HFE, HFU
-185LFU/HFE, HFU
-220LFU/HFE, HFU
2 - φ 7(0.28)
Wiring hole (knockout)
Conduit box
23(0.91)
7(0.28)
10.5(0.41)
250(9.84)
229(9.02)
390(15.35)
376(14.80)
10.5(0.41)
229(9.02)
204(8.03)
3 - φ 44(1.73)
Exhaust
Air intake
537(21.14)
86(3.39) 104(4.09)
244(9.61)
190(7.48)
9.5(0.37)
83(3.27)
147(5.79)
147(5.79)
104(4.09)

Table of Contents

Other manuals for Hitachi SJ300 Series

Related product manuals