EasyManua.ls Logo

Hologic DISCOVERY W - Page 56

Hologic DISCOVERY W
274 pages
Print Icon
To Next Page IconTo Next Page
To Next Page IconTo Next Page
To Previous Page IconTo Previous Page
To Previous Page IconTo Previous Page
Loading...
Discovery QDR Series Technical Manual
3-4
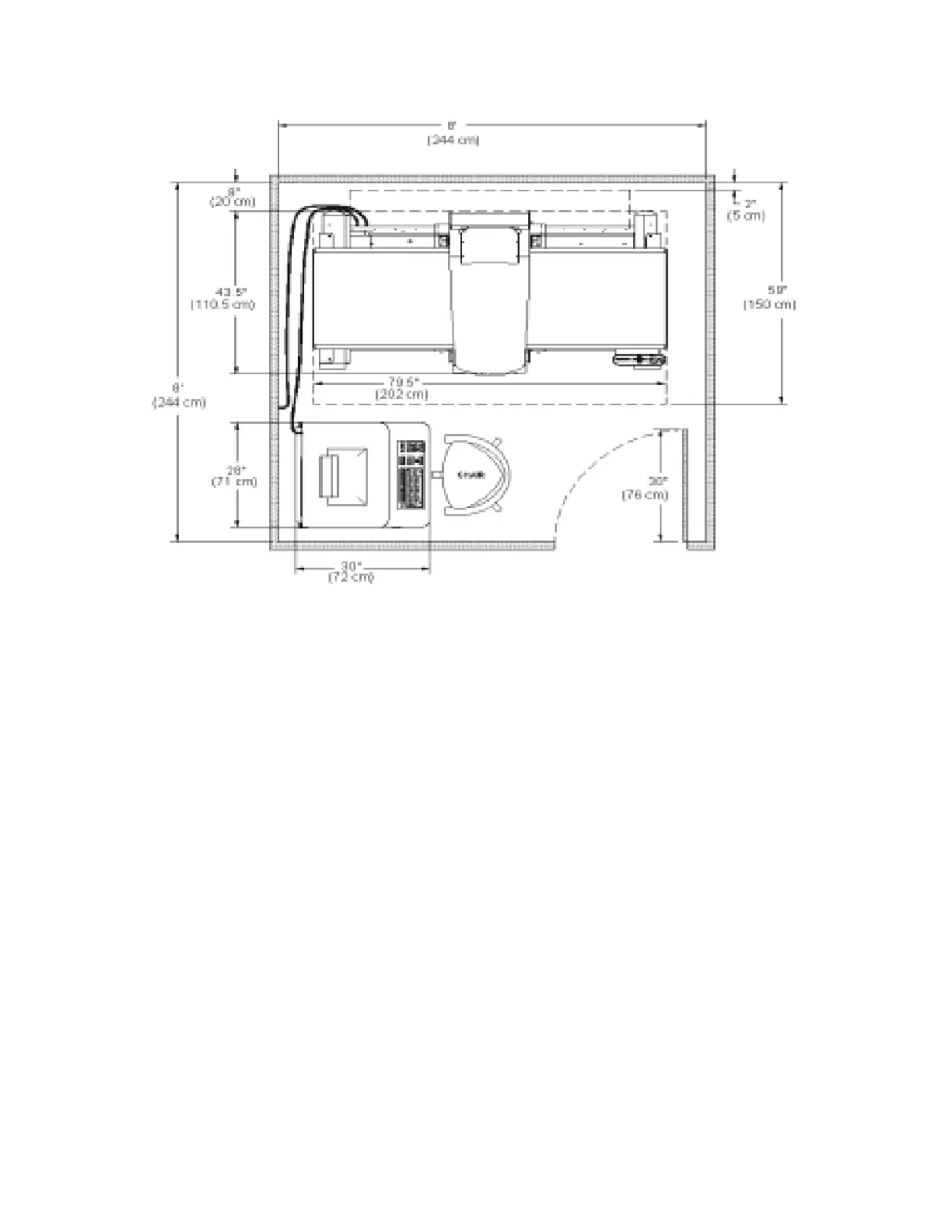
Figure 3-3. System Dimensions for Discovery-SL

Table of Contents

Related product manuals