EasyManua.ls Logo

Hologic DISCOVERY Wi - Room and Doorway Size

Hologic DISCOVERY Wi
274 pages
Print Icon
To Next Page IconTo Next Page
To Next Page IconTo Next Page
To Previous Page IconTo Previous Page
To Previous Page IconTo Previous Page
Loading...
Discovery QDR Series Technical Manual
3-2
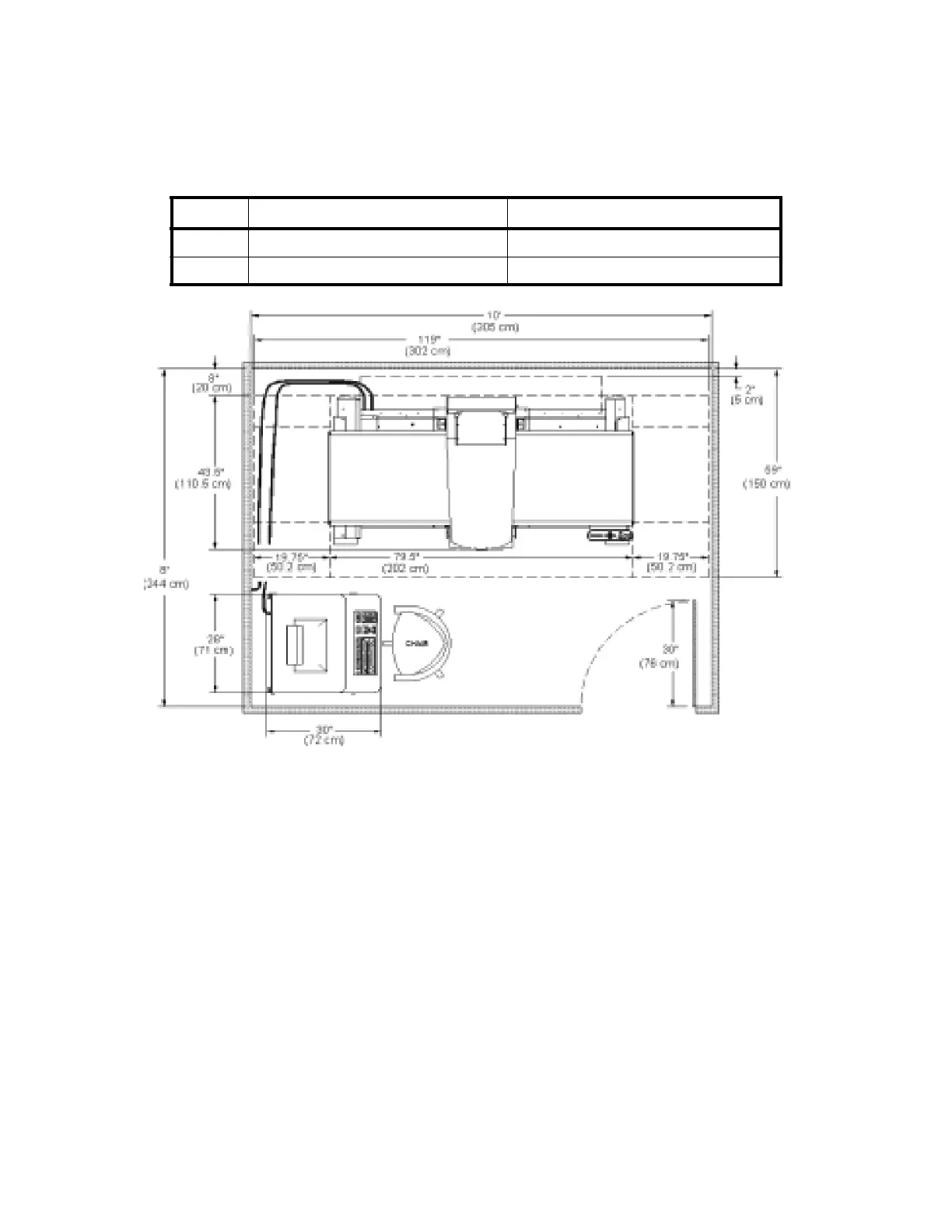
3.1.3 Room and Doorway Size
Use the following table to prepare for the move. Also, Figure 3-1 through Figure 3-4 for
more details.
Figure 3-1. System Dimensions for Discovery-A
Model Minimum Room Size Minimum Doorway Width
SL & C 2.44m (8.0ft) x 2.44m (8.0ft) 0.77m (30.0in.)
A & W 2.44m (8.0ft) x 3.05m (10.0ft) 0.77m (30.0in.)

Table of Contents

Related product manuals