EasyManua.ls Logo

Holzstar KGZ210 E - Electrical Equipment Disposal; Lubricant Disposal; Electrical Wiring Diagrams; Wiring Diagram KGZ 210 E

Holzstar KGZ210 E
34 pages
Print Icon
To Next Page IconTo Next Page
To Next Page IconTo Next Page
To Previous Page IconTo Previous Page
To Previous Page IconTo Previous Page
Loading...
30 KGZ Series | Version 2.02 | EN
Electrical Wiring Diagrams
11.3Disposal of electrical equipment
Note that electrical equipment contains a variety of recy-
cling-capable materials and also environmentally haz-
ardous components. Please help to separate these com-
ponents and dispose of them responsibly. In case of
doubt, contact your local waste disposal authority. Con-
sult a specialist disposal agent for recycling if needed.
11.4Disposing of lubricants
Lubricant manufacturers provide disposal information for
the lubricants used. If necessary, request product-spe-
cific data sheets.
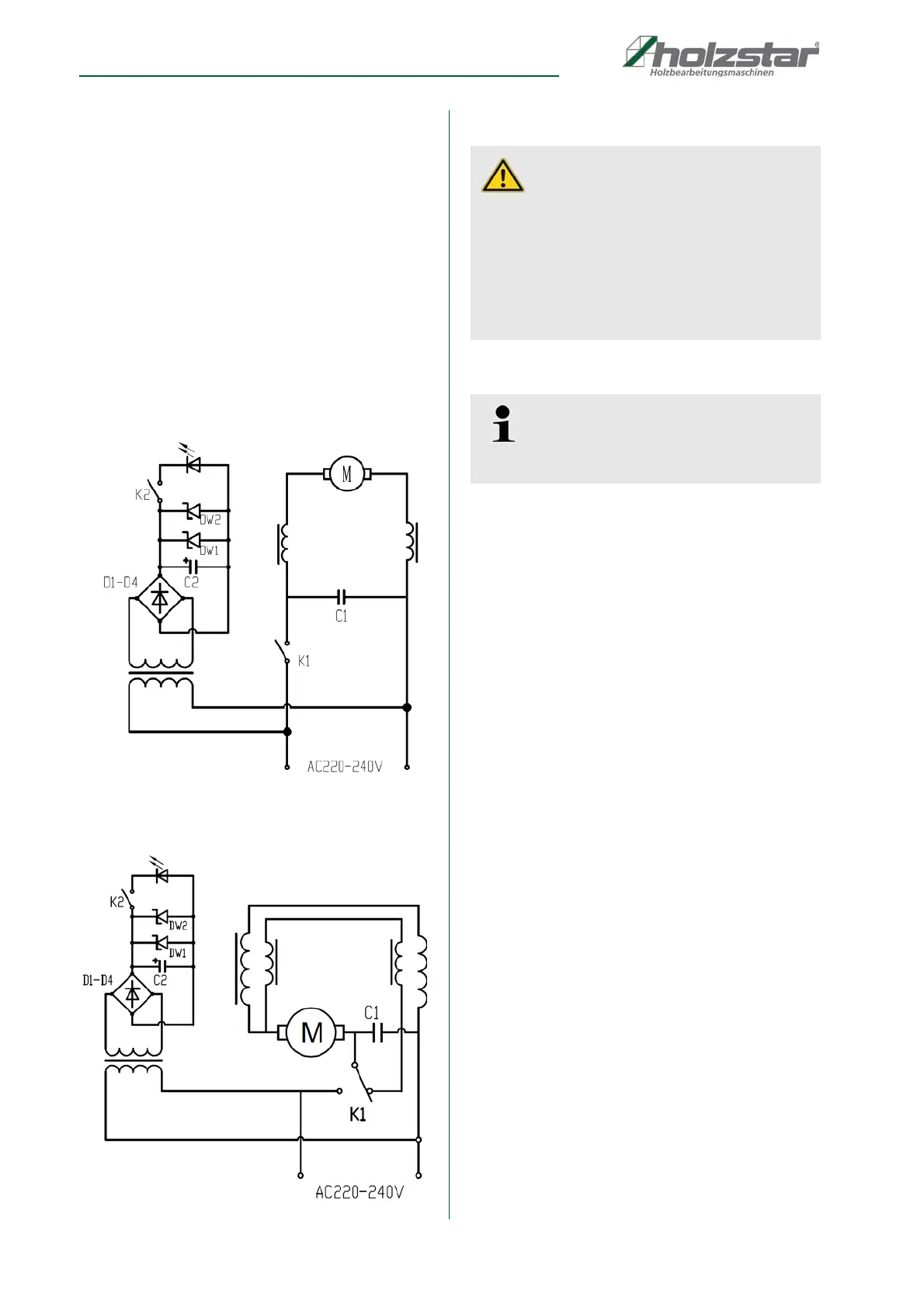
12 Electrical Wiring Diagrams
Model KGZ 210 E
Fig. 20: Wiring diagram KGZ 210 E
Model KGZ 255 E
Fig. 21: Wiring diagram KGZ 255 E
13 Spare parts
13.1Spare parts orders
Spare parts are available from authorised retailers or di-
rectly from the manufacturer. The contact details have
been listed in section 1.2 Customer service.
The following key data is required for queries or spare
parts orders:
- Device type
- Item number
- Position number
- Year of construction
- Quantity
- Desired shipping type (post, freight, sea, air, ex-
press)
- Shipping address
Spare parts orders without the aforementioned data can-
not be taken into account. The supplier shall determine
the shipping type if no relevant data was provided.
Data on the machine type, item number and year of manu-
facture is listed on the type plate attached to the device.
Example
The saw blade for the Chop- and Mitre Saw KGZ 210 E
must be ordered. The saw blade has the number 52 in the
spare parts drawing 1.
By ordering spare parts, send a copy of the spare parts
drawing (1) with the marked part (saw blade) and marked
positon number (52) to the dealer or spare parts depart-
ment and provide the following information:
- Machine type: Chop- and Mitre Saw KGZ 210 E
- Item number: 5702210
- Drawing number: 1
- Position number: 52
DANGER!
Risk of injury caused by the use of
incorrect spare parts!
The use of incorrect or faulty spare parts may cause
risks for operating staff and damage as well as mal-
functions.
- Exclusively genuine spare parts made by the manu-
facturer or spare parts authorised by the manufac-
turer shall be used.
- Always contact the manufacturer if you are unsure.
Tips and recommendations
The manufacturer warranty shall be rendered void in
the event of a use of unauthorised spare parts.

Related product manuals